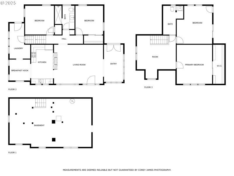
This exceptional Chehalis residence features a meticulous remodel, expertly blending preservation & innovation. The owner's pride & love are evident throughout, w/ unique elements seamlessly integrated into the classic design.Arched features & parlor have been skillfully adapted for modern functionality, while the outdoor basketball/tennis/pickleball court & beautifully fenced yard offer ample opportunities for entertainment & relaxation. Although the charming scaling front staircase does offer the grand entrance this home commands. There is ample driveway parking allowing owners the ability to just step inside with ease. Given its prime location near town & highway.View today to explore its many charms. Addt 722 ft² of unfinished basement
I-5 exit 76, East towards Chehalis on 13th to Market Blvd stop light. Left on S. Market for one bloc
Dwelling Type: Residential
Subdivision: N/A
Year Built: 1935, County: US
I-5 exit 76, East towards Chehalis on 13th to Market Blvd stop light. Left on S. Market for one bloc
Listing is courtesy of John L. Scott Real Estate