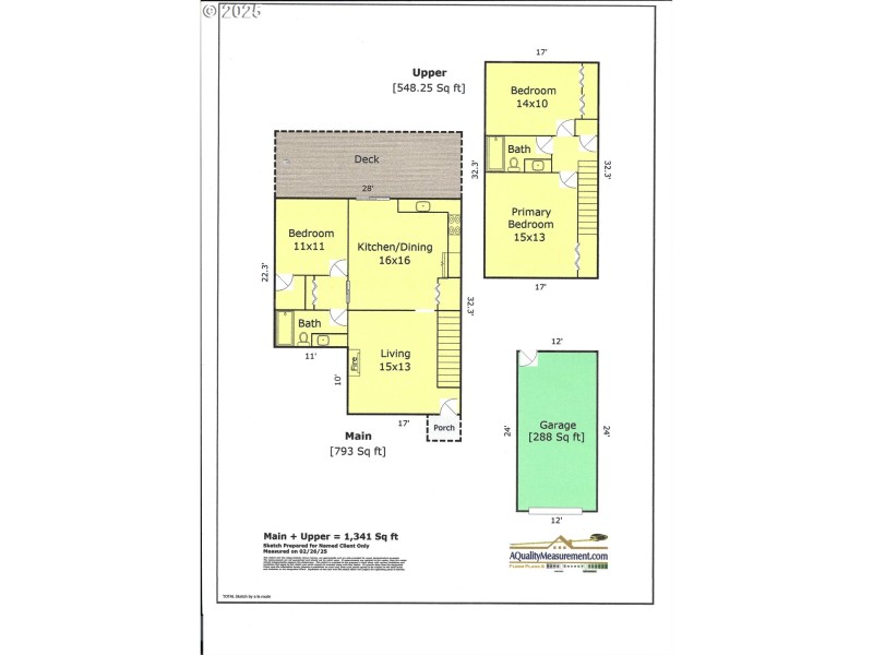
Beautiful Minter Bridge townhome with oversized 1 car garage, extra parking space, 28' x 10' Trex deck with arbor & benches backs to green space. Bedroom & bathroom on the main floor. 2 additional bedrooms & full bath up. Main floor bedroom with built in cabinets & shelves could be used as an office. Living room with wood burning fireplace. Laminate flooring + new carpet. Large kitchen with eating area. New built-in microwave over stove, newer dishwasher. Windows with broken seals have been replaced. All new caulking around windows & doors. Interior professionally painted in 2025. New vapor barrier & heat duct insulation installed in crawl space in 2025. New oversized heat pump with booster fan to handle extreme temperatures. Inspected electrical brought up to current codes. In 2020 HOA installed a new 30 year roof with double tear off, new gutters, downspouts, and doubled the roof vents. HOA made siding repairs to all units in 2023 with new Miller paint on all exteriors. HOA is self managed with reasonable monthly fee of $206. HOA includes a swimming pool, green belt & walking paths with security lighting at night, and exterior maintenance. Convenient location with easy access to park, schools, shopping & dining. One mile to Shute park & aquatic center. [Home Energy Score = 5. HES Report at https://rpt.greenbuildingregistry.com/hes/OR10242516]
TV Hwy, S on Minter Bridge, L on Meadowlark, L on Quail Circle.
Dwelling Type: Residential
Subdivision: N/A
Year Built: 1979, County: US
TV Hwy, S on Minter Bridge, L on Meadowlark, L on Quail Circle.
Listing is courtesy of John L. Scott