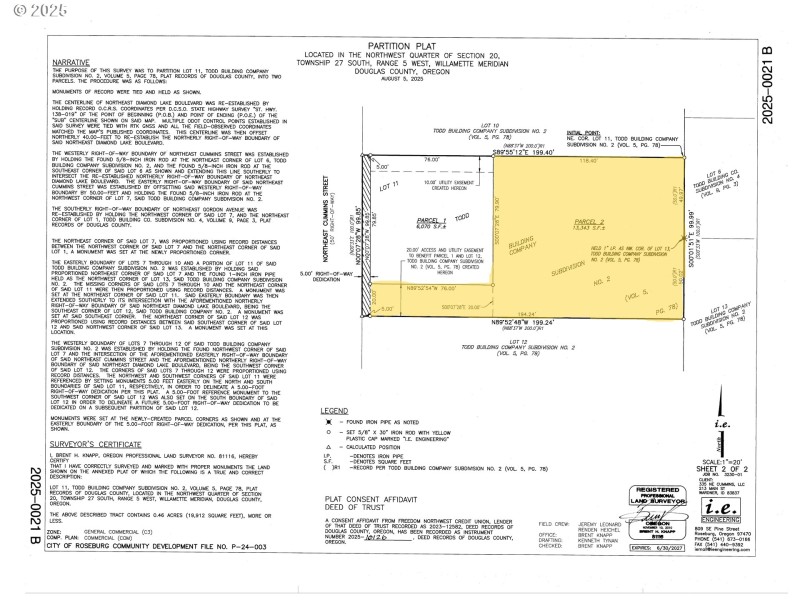
Fantastic C3 zoned commercial or Multi-Family residential. Easy to build, flat lot, partially fenced. Recent boundary line adjustment, please see plat map in photos. All City services to the property line. Ideal location for medical, dental office, professional office, or multi-family residential. Per seller, prior pre-approval given by County for 2 residential duplexes. This lot is 92 feet off of Diamond Lake Blvd, with high traffic count Located across from Kowloon's Chinese Restaurant, behind professional office and next to residential. On the bus route, close proximity to shops, restaurants.
East on Diamond Lake Blvd, L on NE Cummins, R on 1st driveway on right, lot behind 335 NE Cummins
Dwelling Type: Land
Subdivision: N/A
Year Built: N/A, County: US
East on Diamond Lake Blvd, L on NE Cummins, R on 1st driveway on right, lot behind 335 NE Cummins
Listing is courtesy of The Neil Company Real Estate
Sign in to your account to continue