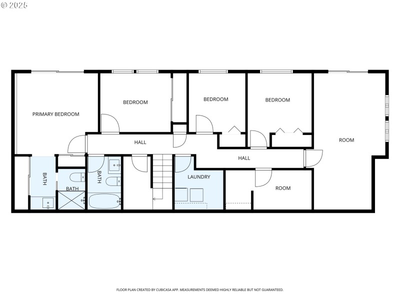
Beautiful West Eugene home on almost a quarter acre lot. Completely remodeled inside and out in 2021 with a new roof, interior and exterior paint, lights, bathrooms, floors, fence and much more. More recently a professionally installed Timber Tech front porch and back deck with stairs leading to the backyard. Included in the sale are stainless steel kitchen appliances with an almost brand new stove/oven range. As well as a nearly brand new Samsung washer and dryer set. The 4th bedroom makes for a perfect flex space that could be used as an optional bonus room or home gym having a sliding door to the exterior. This home is located in a cul-de-sac and surrounded by a wonderful established neighborhood close to schools, grocery stores, shopping and only 4.5 miles to the University Of Oregon. You wont want to miss this move-in ready home just in time to celebrate the holidays!
S on Bailey Hill Rd, L on Warren St, L on Wilshire Ln
Dwelling Type: Residential
Subdivision: N/A
Year Built: 1976, County: US
S on Bailey Hill Rd, L on Warren St, L on Wilshire Ln
Listing is courtesy of Triple Oaks Realty LLC
Sign in to your account to continue