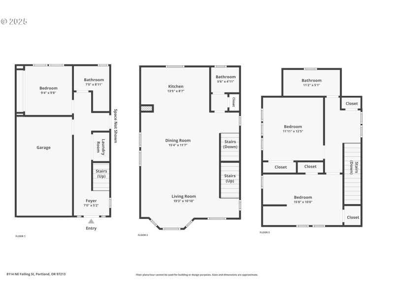
Welcome to Your Modern Dream Home in NE Portland’s Roseway Neighborhood! Built in 2020, this meticulously maintained contemporary gem combines modern convenience, stylish design, and low-maintenance living. Truly move-in ready, it’s the perfect balance of comfort and sophistication in a detached home. From the charming front porch, step into a private entry that offers direct access to the attached garage and a versatile lower-level office/bedroom, ideal for working from home, hosting guests, or creating a bonus space. The open main level is a showstopper, featuring modern laminate floors, abundant natural light, and a beautiful kitchen with expansive quartz countertops, perfect for meal prep, entertaining, and casual dining. The seamless flow between kitchen, dining, and living areas makes this home an entertainer’s dream, complete with stunning skyline views toward the Gorge. Upstairs, retreat to two bedrooms, including a spacious primary designed for relaxation and rejuvenation. Outside, enjoy a quaint, fully fenced, low-maintenance backyard, ideal for pets, gardening, or quiet evenings under the stars. The attached one-car garage provides secure parking plus additional storage. Location highlights: Just minutes from shops and dining on NE Sandy & NE Fremont, the Grotto, and with easy access to everything Portland has to offer. Central yet peaceful, this home is your own modern retreat. Don’t miss this incredible opportunity, schedule your showing today, and experience modern living in the heart of Roseway! [Home Energy Score = 5. HES Report at https://rpt.greenbuildingregistry.com/hes/OR10183265]
Head NE on Sandy Blvd toward 79th Ave, Turn right onto 79th Ave, Turn Left onto Failing St.
Dwelling Type: Residential
Subdivision: ROSEWAY
Year Built: 2020, County: US
Head NE on Sandy Blvd toward 79th Ave, Turn right onto 79th Ave, Turn Left onto Failing St.
Listing is courtesy of Keller Williams PDX Central