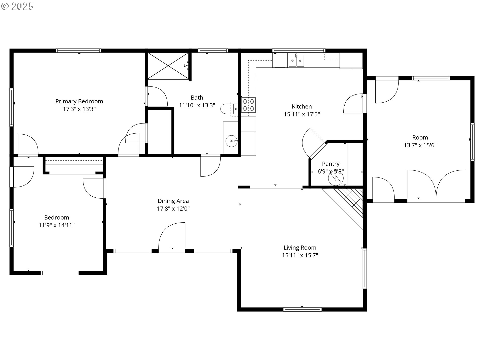
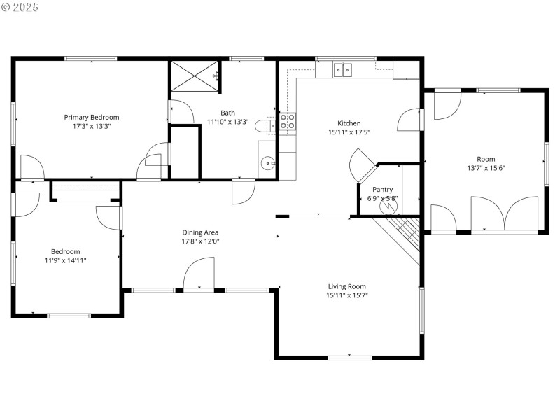
WOW! INVESTOR SPECIAL! Tucked away on the end of a quiet street, this property offers a rare sense of privacy and potential. Set on a .28-acre lot that backs up to open, undeveloped land, this 2-bedroom, 1-bath home is 1,441 square feet and is ready for its next chapter. Inside, vaulted ceilings with exposed wood beams add character and warmth to the open floor plan. Large windows bring in natural light and frame views of the surrounding trees and hills. The tile flooring runs throughout the main living areas, creating a cohesive, low-maintenance foundation for renovation. The kitchen offers generous counter space, a walk-in pantry, and built-in appliances with a solid layout to work from. The attached garage could easily be converted to additional living space. Outside, the fenced yard features mature trees, a detached carport, and plenty of room for RV parking, gardening or expansion. With no neighbors behind you, the setting feels peaceful and private, yet you’re only minutes from town conveniences, shopping, and easy freeway access. Whether you’re an investor, builder, or want a project to make your own, this home is a promising project with good bones, natural surroundings, and room to add serious value. Bring your vision and your toolbelt! Schedule your private tour today!
Stephens > Housley > Johnson to address
Dwelling Type: Residential
Subdivision: N/A
Year Built: 2000, County: US
Stephens > Housley > Johnson to address
Listing is courtesy of Different Better Real Estate
Sign in to your account to continue