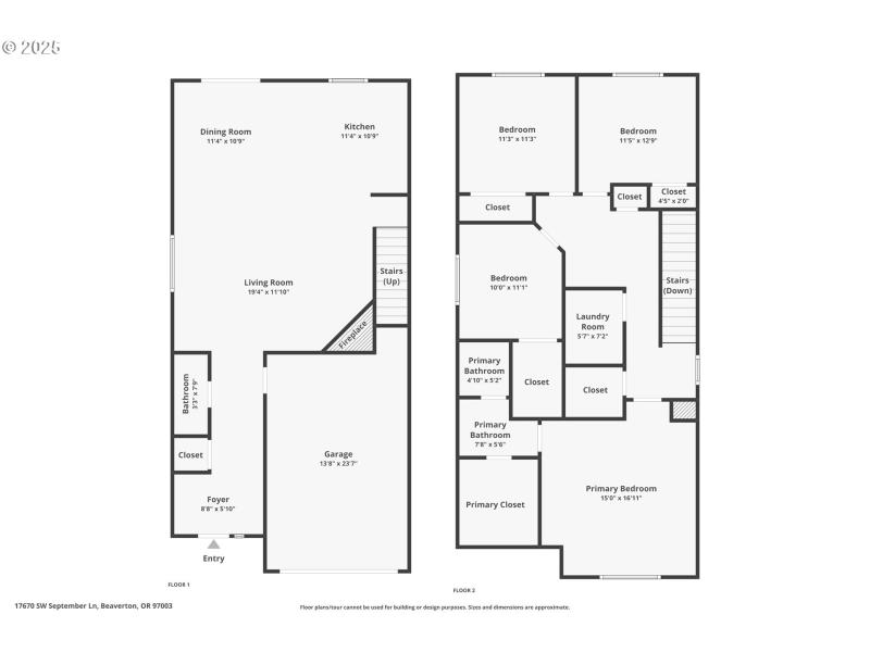
Tucked along a charming tree-lined street in Beaverton, this stylish 4-bedroom home blends comfort and personality at every turn! Step under the covered entrance into a cozy entry nook, then flow into the open-concept main level featuring a spacious living room with a gas fireplace, a dining area, and a gorgeous kitchen with a large island, stainless steel appliances, tiled backsplash, and tons of cabinet space. A sliding door off the dining area opens to a fully fenced, private backyard—ideal for BBQs, pets, or lazy weekend lounging. Upstairs, all four bedrooms and the laundry room keep things convenient, while the primary suite steals the show with vaulted ceilings and a private en suite. With an attached garage and a bright, inviting layout, this home has all the right vibes for easy living and effortless entertaining!
Baseline to 179th to Lawton to September
Dwelling Type: Residential
Subdivision: N/A
Year Built: 2001, County: US
Baseline to 179th to Lawton to September
Listing is courtesy of Opt