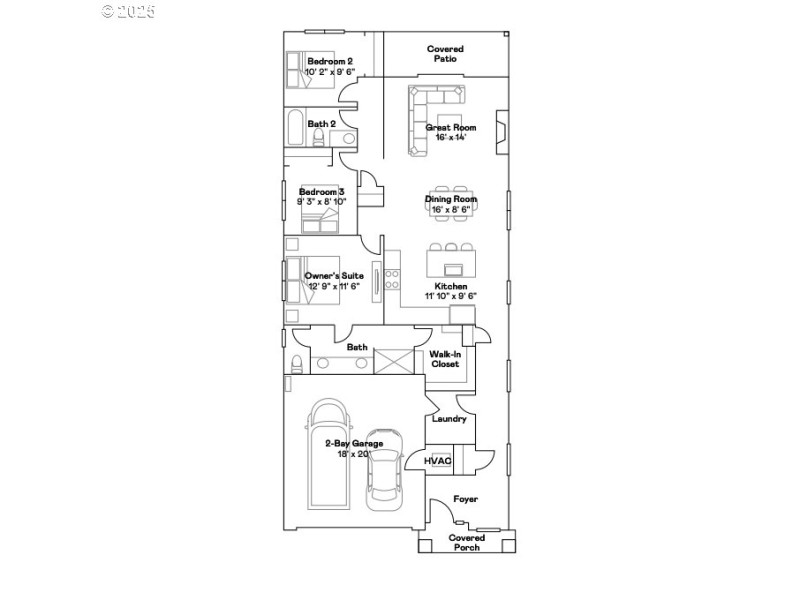
The Avery American offers a contemporary open-concept design that joins the main living spaces & the rear patio. Kitchen boasts quartz counter tops, island, ample storage & S/S appliances. All bedrooms are sizeable w/ the primary suite bathroom featuring a walk-in shower & dual vanity. Home comes w/ front yard landscaping w/ UG sprinklers, f/p, backyard fencing, S/S Frig, W&D, Window Blinds, AC & tankless water heater. Photos are of similar home. Taxes not yet assessed. Flex/Closing costs incentives available with the use of our preferred lender! Use towards rate buydown and closing costs! Homesite #195, estimated completion July, 2025!
Columbus Ave to Logan Pkwy SE
Dwelling Type: Residential
Subdivision: HENSHAW FARM
Year Built: 2025, County: US
Columbus Ave to Logan Pkwy SE
Listing is courtesy of Lennar Sales Corp