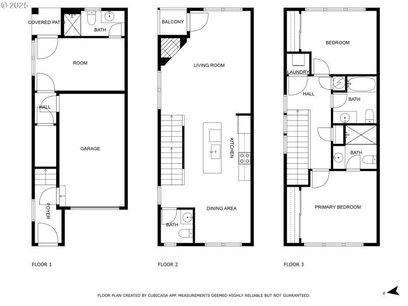
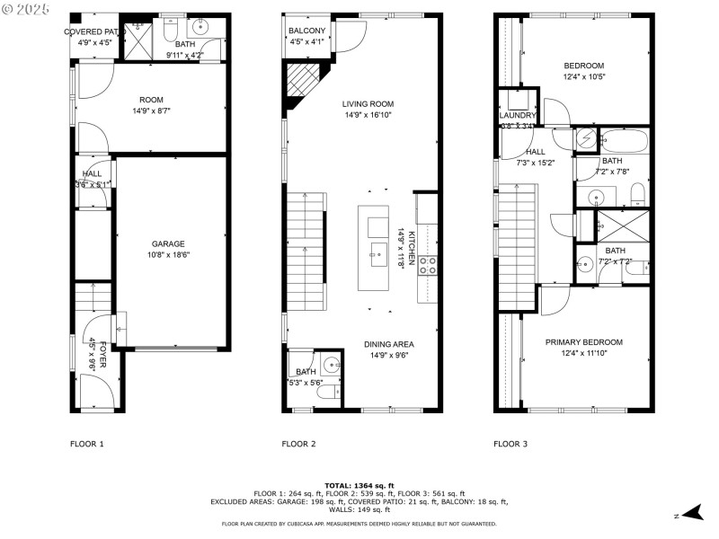
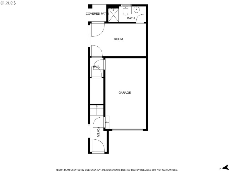
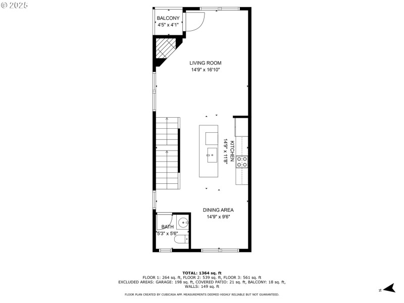
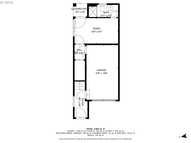
Welcome to this beautifully designed 3-story townhome offering both comfort and flexibility. The upper level features two spacious bedrooms and two full bathrooms, while the ground level provides a versatile studio/bedroom with its own full bath and private access through the garage and backyard, perfect for guests, a home office, or multi-generational living.Enjoy soaring 9-foot ceilings in the kitchen and living room, an electric fireplace for cozy evenings, A/C for year-round comfort, window blinds, and a fully fenced backyard ready for outdoor living.Ideally located near shops, restaurants, Troutdale Station food carts, and McMenamins Edgefield, this home blends modern convenience with a vibrant lifestyle. Come see it today!
1-84 to 257th, West on Halsey, West on Historic Columbia Hwy
Dwelling Type: Residential
Subdivision: N/A
Year Built: 2023, County: US
1-84 to 257th, West on Halsey, West on Historic Columbia Hwy
Listing is courtesy of eXp Realty, LLC