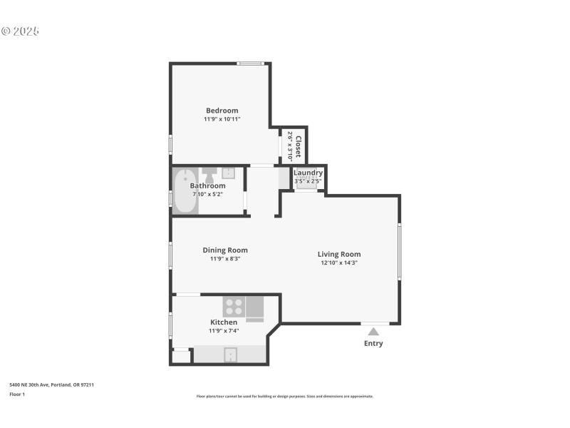
Don't miss this top floor unit perched among the trees. Ample natural light flows through this restored and well maintained 1 bedroom 1 bathroom home. Features include hardwood floors, charming built-ins, and an in unit washer and dryer. Located off of Killingsworth and a stones throw from Alberta Street, this location can not be beat! Shops, resultants, coffee, and parks are all just minutes away. Take a look today!
NE Killingsworth X NE 30th
Dwelling Type: Residential
Subdivision: N/A
Year Built: 1946, County: US
NE Killingsworth X NE 30th
Listing is courtesy of Redfin