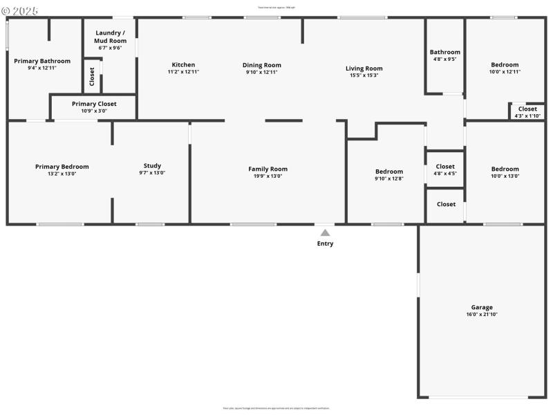
Beautifully Updated Home Near Greenleaf Lake! Tucked at the end of a quiet street in scenic North Bonneville, this spacious 1,900 sq ft home offers comfort, charm, and modern updates throughout. Features include a new roof and gutters (2020), new siding (2023), remodeled kitchen with 2019 appliances, remodeled bath, new water heater (2019), and a heat pump with central air. The private backyard boasts apple and cherry trees, grapevines, a 12' × 14' gazebo, and a new patio (2023), perfect for relaxing or entertaining. Enjoy mountain views from the front deck, plus a covered back porch, oversized single garage, 12' × 14' Tuff Shed, and garden shed. Just 30 yards from Greenleaf Lake with backyard access, this property combines outdoor living with a peaceful, small-town feel, close to amenities but away from the hustle and bustle.
HWY 14 to Hotsprings Way, Left on Cascade Dr to Aria Way
Dwelling Type: Residential
Subdivision: N/A
Year Built: 2003, County: US
HWY 14 to Hotsprings Way, Left on Cascade Dr to Aria Way
Listing is courtesy of John L. Scott Real Estate