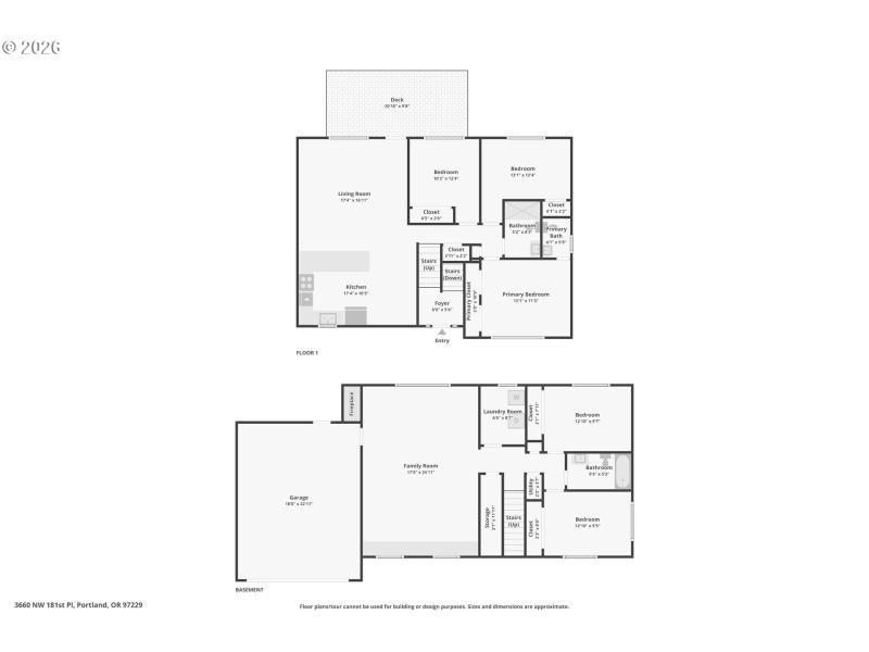
Welcome to this wonderful home nestled in a peaceful cul-de-sac in Bethany’s lovely Oak Hills neighborhood. This 5-bedroom, 2.5-bathroom home is all yours to personalize. On the main floor, you’ll discover three bedrooms and a lovely main living area. The primary bedroom features an ensuite and ample closet space. The open-concept kitchen and living room form the home’s functional and inviting heart. The wood-burning stove brings warmth and charm to the living space. A spacious family room with its own fireplace awaits on the lower level, along with two more bedrooms. Plus, the large backyard offers endless possibilities for gardening and raising chickens. Solar panels enhance energy efficiency and help keep your electric bills low in your new home!
from NW 185th Ave, E on NW Park View Blvd, N on 183rd, E on Olympic Dr, S on 181st Pl
Dwelling Type: Residential
Subdivision: OAK HILLS / BETHANY
Year Built: 1964, County: US
from NW 185th Ave, E on NW Park View Blvd, N on 183rd, E on Olympic Dr, S on 181st Pl
Listing is courtesy of Redfin
Sign in to your account to continue