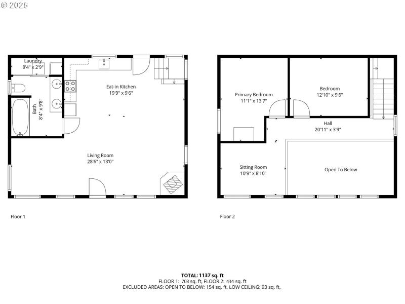
Modern Wood Cabin Retreat on the Zigzag River! Live out your wood cabin fantasy in this forest hideaway, nestled between Camp Creek and the Zigzag River. Tucked deep among the trees, this artist’s retreat offers peace and privacy - with only the sound of the creek to keep you company. Inside, knotty pine paneling and 20-foot vaulted ceilings set the stage for a wall of windows and skylights to frame the lush green forest views, while the open living and dining areas stay toasty year-round with a classic wood stove.The remodeled kitchen features a porcelain farmhouse sink, open shelving, and plenty of counter space. The spa-like bathroom includes an oversized soaking tub, dual shower heads, copper sinks, and a full-sized washer and dryer. Upstairs, two bedrooms and a bonus loft provide flexible sleeping space for seven or more guests - perfect for ski weekends, summer getaways, or hosting the fam.Outside, enjoy peaceful mornings on the deck surrounded by evergreens and the rippling sounds of Camp Creek. Explore nearby lesser-used hiking trails or cast a line in the river just steps from your door (the fishing is excellent!). Built in the 90s and thoughtfully updated since, the cabin is being sold fully furnished - just in time for the holidays and ski season. Only an hour from Portland, this design-forward retreat is minutes from ski resorts, scenic trails, and all the mountain magic Mt. Hood has to offer! Property is on leased forest land and available to cash buyers only.
From East Hwy 26 go right onto Road 28, Right on road 28A, Left onto Lot 25- *look for sign
Dwelling Type: Residential
Subdivision: N/A
Year Built: 1992, County: US
From East Hwy 26 go right onto Road 28, Right on road 28A, Left onto Lot 25- *look for sign
Listing is courtesy of Neighbors Realty