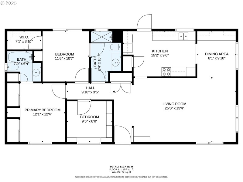
Welcome to this 1,176 sq. ft. charming double-wide manufactured home, offering comfort, space, and a vibrant lifestyle in a friendly 55+ community. Inside, the open living room flows seamlessly into the dining area, creating the perfect space for gatherings and everyday relaxation. The kitchen features its original cabinetry, ready for your personal touch, and the washer and dryer are conveniently included. Each bedroom offers generous space, with the third bedroom featuring built-in shelving that makes it versatile for storage, hobbies, or a home office.This home also includes updated vinyl windows, a fabulous heat pump that keeps it comfortable year-round, and newer toilets. A private storage shed provides additional space for tools, seasonal items, or projects. The community has recently been refreshed with new pavement and offers excellent amenities, including a meeting room, exercise room, and a full calendar of activities that bring neighbors together. Located close by shopping, grocery stores, and daily conveniences, this home combines comfort, convenience, and community. With just a little TLC, it’s ready to shine as your perfect retreat.
TV hwy S on SE 24th Ave, Left on River Rd, Left to River Rd Estates
Dwelling Type: Residential
Subdivision: N/A
Year Built: 1971, County: US
TV hwy S on SE 24th Ave, Left on River Rd, Left to River Rd Estates
Listing is courtesy of All Professionals Real Estate