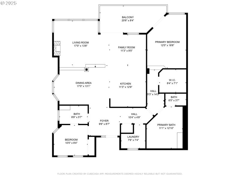
This beautiful oceanfront condominium is located in the Southshore gated community in South Beach, Oregon. Enjoy one-level ground floor living with wonderful views of the dunes and ocean from most every room. The building for this unit was constructed with exterior concrete walls, ceilings and floors. This method was used to create superior energy efficiency and sound proofing compared to traditional stick-built construction. The condo has extra-large windows on the westside creating excellent views of the dunes and ocean. The living and primary bedroom both have sliding glass doors leading to a large westside covered patio complete with windscreens creating a pleasant outdoor environment. A significant exterior repair/upgrade project was recently completed including new siding, trim, windows, sliders and roofing system.The main living has an open space design to provide the living, dining and kitchen areas with excellent ocean views. The primary bedroom features the patio access, ensuite 5-piece bathroom and walk-in closet. The guest bedroom offers a peek-a-boo ocean view and direct access to a full bathroom.Enjoy life at the beach in this beautiful home. Southshore is a friendly and welcoming community offering many amenities and activities. Amenities include the Clubhouse with indoor pool and exercise, sauna and steam rooms, indoor/outdoor tennis and pickleball facilities, community park, private roads and beach access paths.
SW 61st/West of Hwy 101 on SW 62nd, South on Arbor, West on 61st which becomes SW Cupola
Dwelling Type: Residential
Subdivision: SOUTHSHORE
Year Built: 1998, County: US
SW 61st/West of Hwy 101 on SW 62nd, South on Arbor, West on 61st which becomes SW Cupola
Listing is courtesy of Cascade Hasson Sotheby's International Realty