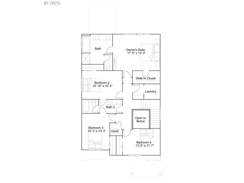
This new construction Ashland plan features a classic two-story layout with an open-concept main level that includes a fireplace-warmed great room, dining area, kitchen, tech nook, and rear patio. Autumn Sunrise offers convenient access to the freeway, local restaurants, and retail, as well as community features like pickleball courts, a park, playground, and picnic areas. All four bedrooms are located upstairs, including a generous primary suite with a walk-in closet and a bathroom with a soaking tub. Positioned less than 10 minutes from Costco, under 15 minutes from the river, and convenient to golf courses and Bridgeport, the home also comes complete with the Everything’s Included® package, offering air conditioning, refrigerator, washer and dryer, and window blinds. Located on homesite 336, this home is estimated to be complete in fall 2025.
SW Boones Ferry Rd, East on Norwood Rd, South on 89th Ave
Dwelling Type: Residential
Subdivision: N/A
Year Built: 2025, County: US
SW Boones Ferry Rd, East on Norwood Rd, South on 89th Ave
Listing is courtesy of Lennar Sales Corp