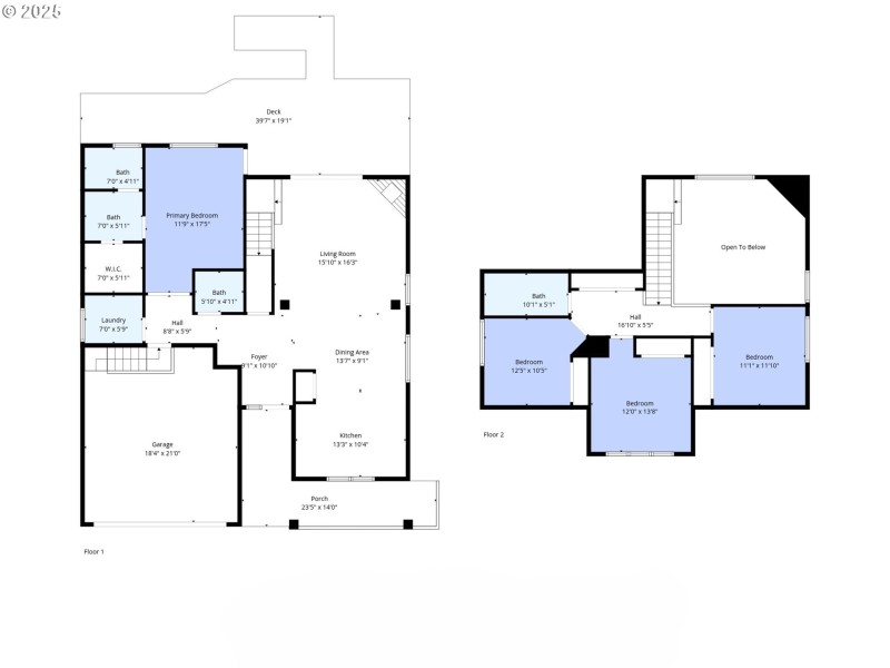
This beautifully designed 4-bedroom, 2.5-bath home in the sought-after Lookout Ridge neighborhood has everything you’ve been looking for. Boasting a perfect blend of modern style and functional layout, it offers comfort and convenience at every turn. Plus, it’s located within the highly rated Camas School District. MAIN FLOOR: The spacious primary suite on the main floor includes a private en-suite bath and a generous walk-in closet. The open-concept living area features a cozy gas fireplace, a dining area, and a stylish kitchen with updated appliances, ample counter space, and a large pantry—ideal for entertaining guests or enjoying family time. Laundry room is on the mail floor complete with washer and dryer. UPSTAIRS: You’ll find three additional bedrooms and a full bathroom—perfect for kids, guests, or even a home office. OUTSIDE: Relax and unwind on the composite front and back decks, perfect for sipping a drink, grilling, or hosting outdoor gatherings. The large, fully fenced backyard offers privacy and space for play or gardening. End your day with a soothing soak in the hot tub. LOCATION: Enjoy the best of both worlds—peaceful neighborhood living with convenient access to parks, trails, the farmers market, and all the shopping and dining in the vibrant, up-and-coming downtown areas of Washougal and Camas. Located on the Camas border, this home offers access to Camas amenities without the higher Camas taxes. BONUS: A brand-new roof was installed in May 2025, offering peace of mind for years to come. The included hot tub, refrigerator, washer, and dryer add even more value. Both Comcast high speed cable and Ziply high speed symmetrical fiber available.
Crown Road & Lookout Ridge Drive
Dwelling Type: Residential
Subdivision: N/A
Year Built: 2002, County: US
Crown Road & Lookout Ridge Drive
Listing is courtesy of Realty One Group Prestige