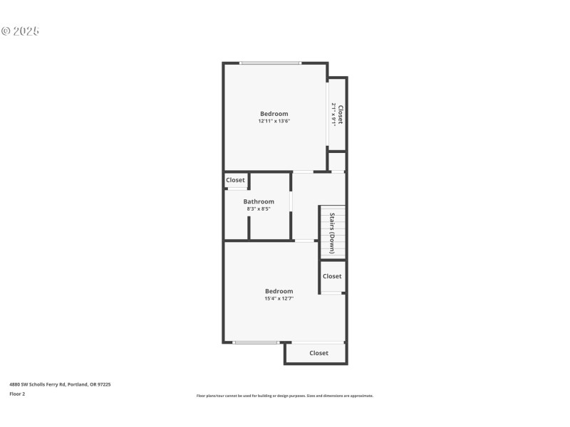
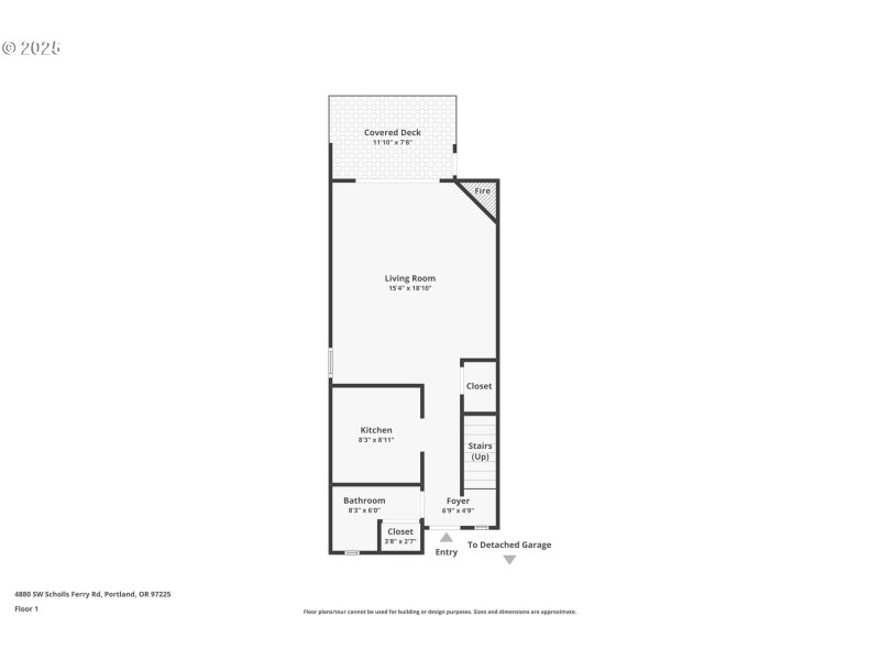
Great opportunity to own in the heart of Raleigh Hills with easy access to shopping, downtown, tech corridor, and parks. Rare end unit townhome in this boutique complex. Great floorplan with additional private outdoor deck space for relaxing or dining. The main floor is very functional with ample-sized kitchen, good counter space, and eating bar. Newer laminate floors in the combination dinging room/living room. Updated fireplace, and wall of glass with a sliding door to the outside. Upstairs you will find two nice sized bedrooms and two full bathrooms. Complete with a hard-to-find detached garage. Fenced backyard allows for privacy as well as nice views and treed setting.
Beaverton Hillsdale Hwy to SW Scholls Ferry Road just south of 4 Corners
Dwelling Type: Residential
Subdivision: N/A
Year Built: 1980, County: US
Beaverton Hillsdale Hwy to SW Scholls Ferry Road just south of 4 Corners
Listing is courtesy of Keller Williams Sunset Corridor
Sign in to your account to continue