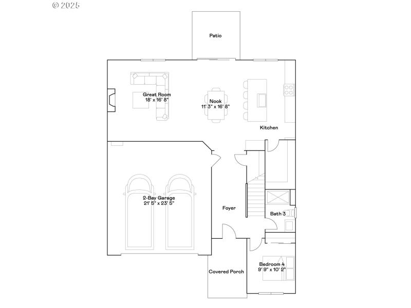
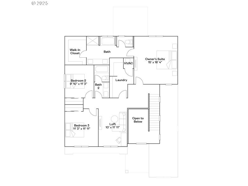
Take a self guided tour of this new construction home in Parkview Terrace, a community just 35 minutes from Portland and minutes from McMenamins Grand Lodge, with nearby dining and entertainment. The Larview plan features a first-floor bedroom and full bath, plus an open kitchen, dining area, and great room with a fireplace that extends to the backyard. Upstairs, a central loft connects three bedrooms including a spacious primary suite with a private bath and walk-in closet. Interior highlights include quartz countertops, shaker-style cabinets, and LVP flooring. This home also includes central air conditioning, a refrigerator, washer and dryer, and blinds—all at no extra cost! Located on homesite 62, this home is move in ready. Rendering is artist conception only. Photos are of a similar home, features and finishes will vary.
David Hill Rd to Thatcher Rd to Glade to Butte Dr. Check in at the Welcome Home Ctr at Glade & Butte
Dwelling Type: Residential
Subdivision: N/A
Year Built: 2025, County: US
David Hill Rd to Thatcher Rd to Glade to Butte Dr. Check in at the Welcome Home Ctr at Glade & Butte
Listing is courtesy of Lennar Sales Corp