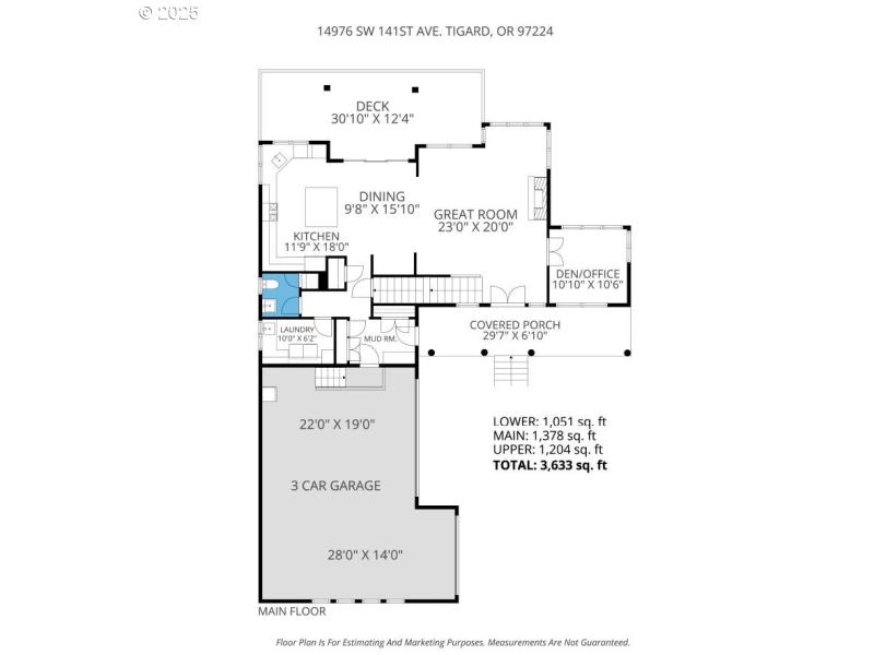
Custom home on Bull Mountain, filled with natural light. Home has eastern exposure for maximizing morning sun with afternoon shade on the deck. Located at the end of a private lane for a peaceful living experience. Residence was refreshed in 2025, including refinished hardwood floors, new carpet, interior paint, new cooktop, and tankless hot water heater for endless hot water. HVAC system inspected. Kitchen has a Thermador double oven, undermount farm sink, stainless appliances. Mudroom with ample storage, is located right off the front porch. Basement is a fantastic hang out spot with full bath, 5th bedroom, and a flex room. Primary suite has room for bed and sitting area, large shower and jetted tub. Fully landscaped, irrigation system, firepit, garden, inground hoop. Move in ready! Fantastic setting for peace and quiet, situated at the end of a private lane amongst five custom homes. Excludes six day lilies that have been in the family for 100+ years. Agent is an owner.
SW Bull Mtn Road to SW 141st Avenue
Dwelling Type: Residential
Subdivision: N/A
Year Built: 2010, County: US
SW Bull Mtn Road to SW 141st Avenue
Listing is courtesy of Where, Inc