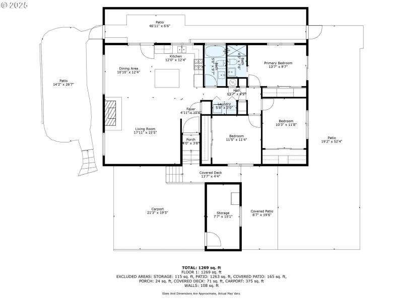
Single-level mid-century modern home in Lake Oswego with peaceful West Bay water views. This thoughtfully designed 3-bedroom, 2-bath residence offers the best of single-level living with comfort, style, and a natural connection to the outdoors. Start your mornings watching eagles soar over the lake, and enjoy sunsets from your private patio. Enjoy a private, landscaped backyard with professional plantings and a spacious patio perfect for outdoor entertaining. Features include a functional layout, generous storage, large fenced yard, and stylish fixtures. Just blocks from Lake Oswego’s top restaurants, shopping, and grocery stores, this home combines stunning views, convenience, and lifestyle—all in one exceptional property.
Bryant to Westbay
Dwelling Type: Residential
Subdivision: N/A
Year Built: 1960, County: US
Bryant to Westbay
Listing is courtesy of Windermere Realty Trust