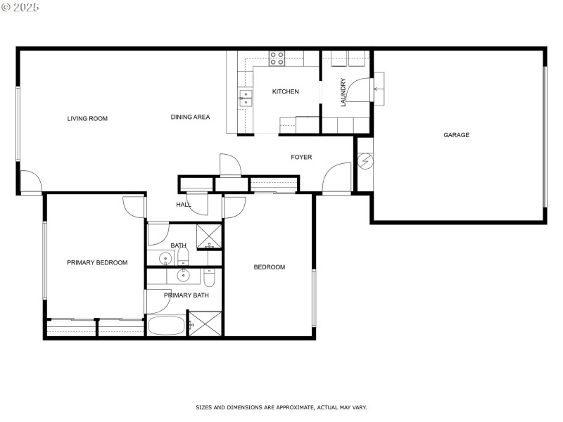
Easy Living Starts Here!Welcome to low-maintenance living in the desirable 55+ Meadowood Condominium community, just steps from Mint Valley Golf Course. This spacious 2-bedroom, 2-bath condo offers a bright, open floor plan with vaulted ceilings and skylights in the living and dining areas. The kitchen features under-cabinet lighting and some updated appliances, while the adjacent laundry room offers abundant built-in storage. The generous primary suite includes double closets and an en suite bath. Additional highlights include a large second bedroom, central vacuum system, heat pump, and an attached 2-car garage. Relax or entertain on your private concrete patio. Schedule your private tour today!
W on Ocean Beach Hwy. Right on 38th Avenue. Left on Pennsylvania. 2nd left into Meadowood Condos.
Dwelling Type: Residential
Subdivision: N/A
Year Built: 1998, County: US
W on Ocean Beach Hwy. Right on 38th Avenue. Left on Pennsylvania. 2nd left into Meadowood Condos.
Listing is courtesy of Real Broker LLC