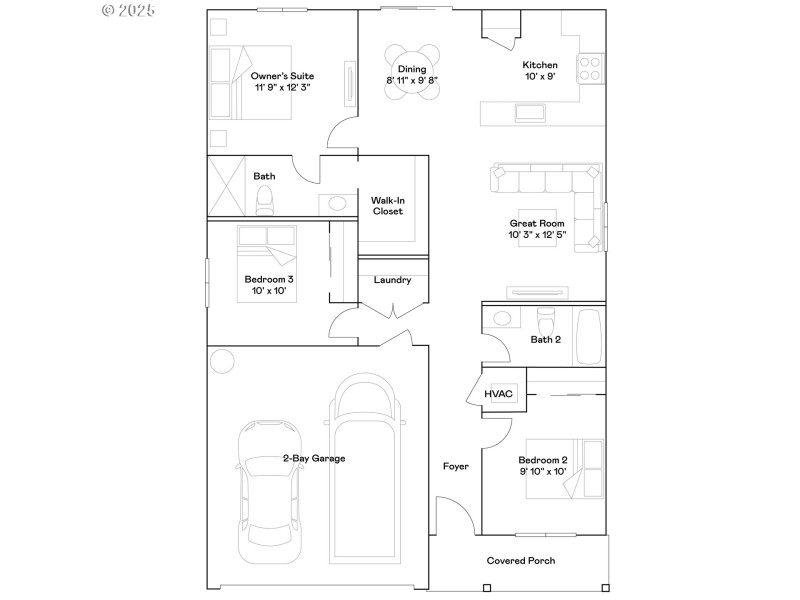
This new construction home is located in Oakley Estates, a charming community just minutes from Fern Ridge Lake and 15 miles from Eugene, with easy access to wine country and the coast. The Alderwood plan offers single-level living with a versatile bedroom off the entry that can serve as a guest room or home office, flowing into the kitchen, dining area, and great room. Two more bedrooms sit on the side of the home, including the spacious primary suite with a walk-in closet and primary bath. Interior highlights include quartz countertops, shaker-style cabinets, LVP flooring in the kitchen and bathrooms, along with fencing and landscaping. This home also includes central air conditioning, a refrigerator, washer and dryer, and blinds—all at no extra cost! Located on homesite 15, this home is expected to be complete in winter 2025. Rendering is artist conception only. Photos are of a similar home, features and finishes will vary. *Below-market rate incentives available when financing with preferred lender.*
W on OR 126, R on Cornerstone, L on Jeans, R on Hope: 25235 Todd Way, Veneta
Dwelling Type: Residential
Subdivision: N/A
Year Built: 2025, County: US
W on OR 126, R on Cornerstone, L on Jeans, R on Hope: 25235 Todd Way, Veneta
Listing is courtesy of Lennar Sales Corp