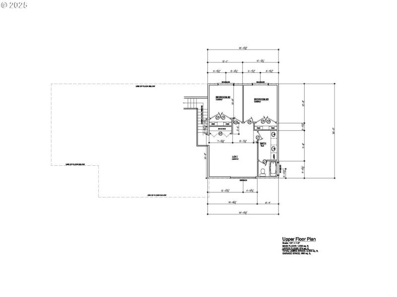
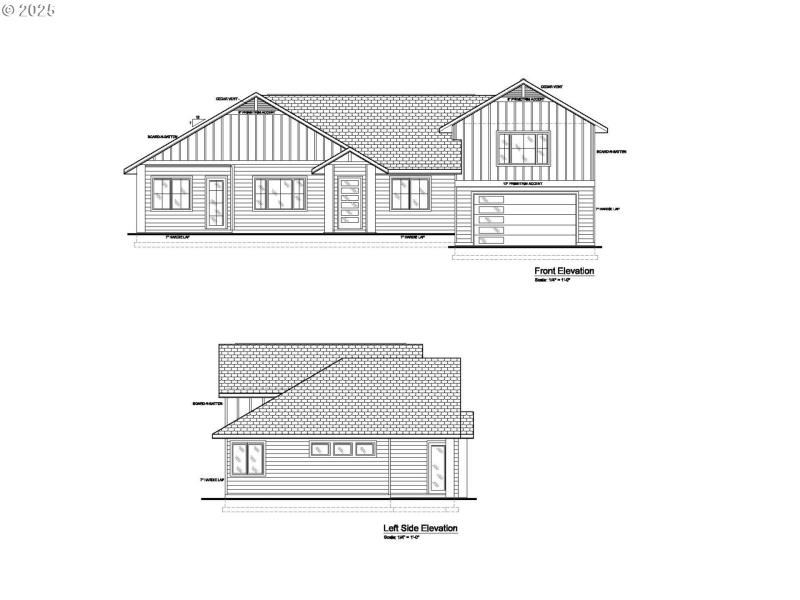
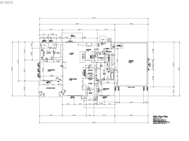
View lot in ideal Hucrest location with full construction plans (see photos) for a 2300 sf house provided along with a completed Geo Tech Report. Local builder has built similar plan on similar lot and it offers a downstairs master and full guest suite as well as an open concept to take advantage of the outstanding views. Gated community, panoramic views of Roseburg and surrounding mountains. Prime location and flat lot ideal for construction with minimal site work required. Owner has spent in excess of $5,000 for plans and Geotech. Seller can assist with construction financing and builder contacts if necessary.
West on Garden Valley, right on Troost, through gate and right onto Warewood Terrace lot on left
Dwelling Type: Land
Subdivision: WAREWOOD TERRACE
Year Built: N/A, County: US
West on Garden Valley, right on Troost, through gate and right onto Warewood Terrace lot on left
Listing is courtesy of The Neil Company Real Estate
Sign in to your account to continue