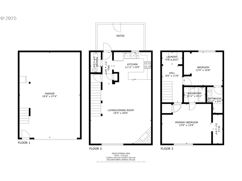
Nestled in the trees of Wood Village, this townhome on Treehill Drive is more than meets the eye. From the front of the home, an oversized garage encompasses the full lower level with room to park and store all your favorite things in one place. Down a tree filled path at the back of the property, a deck leads you to the back door or the second level of the town home. An open concept living space with remodeled kitchen, cork flooring and wood burning fire place make for an even more cozy feel amongst the trees. The top floor features two bedrooms both with ensuite bathrooms and a laundry closet. A mini-split heat pump system was recently installed for energy efficient heating and cooling. Schedule a showing and see why we love Wood Village!
HWY 84, South NE 238th DR, Left on NE Treehill Dr
Dwelling Type: Residential
Subdivision: WOOD VILLAGE
Year Built: 1982, County: US
HWY 84, South NE 238th DR, Left on NE Treehill Dr
Listing is courtesy of RE/MAX Northwest