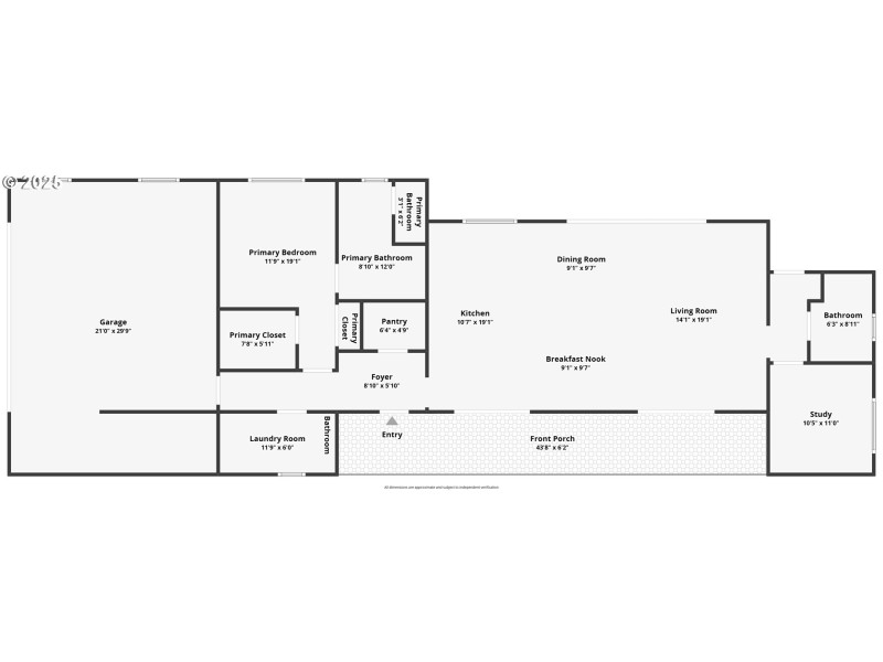
Perched at the base of Mt. Hood, this newly built modern single-level home offers the perfect blend of clean design and mountain living. Located just one mile from the charming town of Parkdale, 20 minutes to Hood River, and only 35 minutes to Mt. Hood Meadows, adventure is always within reach. Inside, you'll find a thoughtfully designed 2-bedroom, 3-bath home with 1,525 sq ft of open-concept living space. Back hot tub patio could be turned into a 3rd bedroom. The minimalist aesthetic and airy layout create a calming atmosphere, while oversized windows frame stunning views of Mt. Hood. Step outside to enjoy the fresh mountain air on covered concrete patios—ideal for year-round outdoor living. Whether you’re looking for a full-time residence or the perfect weekend escape, this home is a rare find in an unbeatable location. Motivated Sellers! Make an offer!
S hwy 35, R Cooper Spur Rd, R Baseline, L Clear Creek, .9 m House on R
Dwelling Type: Residential
Subdivision: N/A
Year Built: 2023, County: US
S hwy 35, R Cooper Spur Rd, R Baseline, L Clear Creek, .9 m House on R
Listing is courtesy of Copper West Real Estate