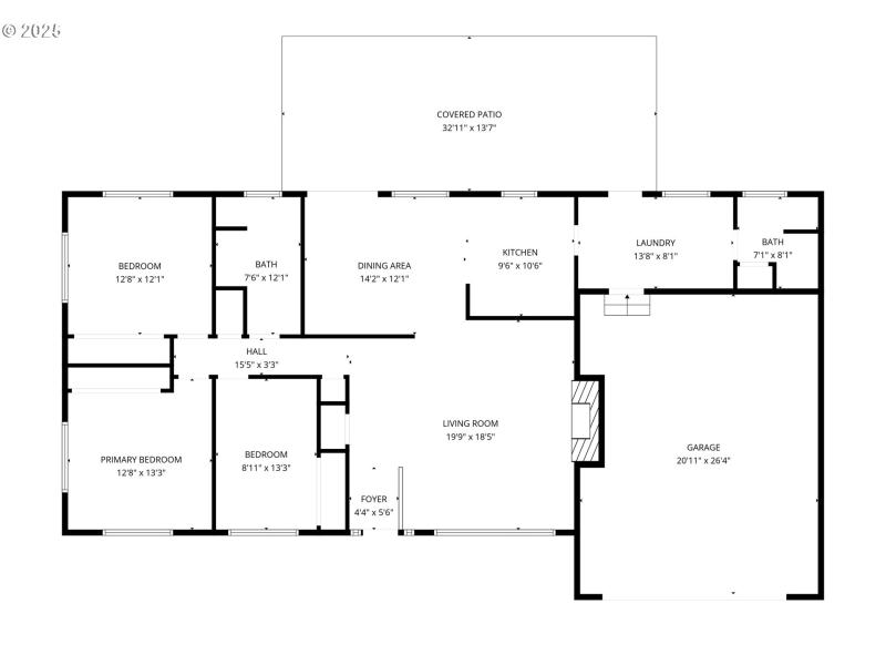
This is it! 3 bedroom, 2 bath Ranch Style home on the edge of McMinnville - near shops, restaurants, and the calm countryside of Yamhill County! Cozy up in your spacious living room, featuring a large picture window and a wood fireplace. Kitchen and dining room look out onto a covered patio, private backyard, pantry, expansive laundry room with lots of storage, and a sink too! Great floor plan - The Architect who designed this home had it built for himself and his family; only 2 owners! 2nd bathroom has a walk-in shower, RV Parking, oversized lot, fenced back yard, covered patio, large shed, roses, plenty of space for gardening, and peaceful, quiet outdoor living. The attached 2-car garage is oversized with lots of built-ins, work benches, and peg boards for tools. Schedule your own home tour and Welcome Home!
Baker - Right on Old Sheridan Rd, Right on East St, Left on Wanetah Way
Dwelling Type: Residential
Subdivision: Mekkers Addition
Year Built: 1972, County: US
Baker - Right on Old Sheridan Rd, Right on East St, Left on Wanetah Way
Listing is courtesy of MORE Realty