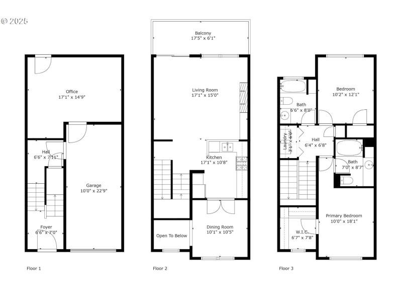
Tucked into the heart of Forest Heights, this modern brownstone blends comfort, style, and convenience. Step inside to a welcoming foyer with soaring ceilings—a gracious place to greet guests or kick off your shoes at the end of the day.Upstairs, the light-filled living space invites you to unwind by the gas fireplace, curl up with a book from the built-in shelves, or gather with friends. The open kitchen makes cooking a pleasure, with a newer gas stove, generous counter space, and storage for all your culinary tools. Through French doors, the dining room sets the stage for everything from cozy dinners to festive celebrations.The upper level is your private retreat, with two bedrooms, two full baths, and laundry. Vaulted ceilings elevate the primary suite, where you’ll love the walk-in closet and spa-like en-suite bath.On the lower level, a spacious bonus room adapts to your lifestyle—perfect for a home office, gym, studio, or playroom—with direct access to the deck and fully fenced backyard for fresh-air living. A tuck-under garage adds convenience with room for storage.Modern comforts include a tankless water heater, energy-efficient heat pump with A/C, and smart thermostat. HOA amenities keep life simple, covering water, sewer, and nearly all exterior upkeep—from landscaping and snow removal to roof and siding maintenance and shuttle service to Sunset Transit Center. Here, you’re just moments from Forest Heights Elementary, neighborhood parks, playgrounds, and trails—everything you need to live, work, and play right at home.
From NW Cornell Rd - North on Miller Rd - Left on Wilshire Lane
Dwelling Type: Residential
Subdivision: NORTHWEST HEIGHTS
Year Built: 2002, County: US
From NW Cornell Rd - North on Miller Rd - Left on Wilshire Lane
Listing is courtesy of Think Real Estate