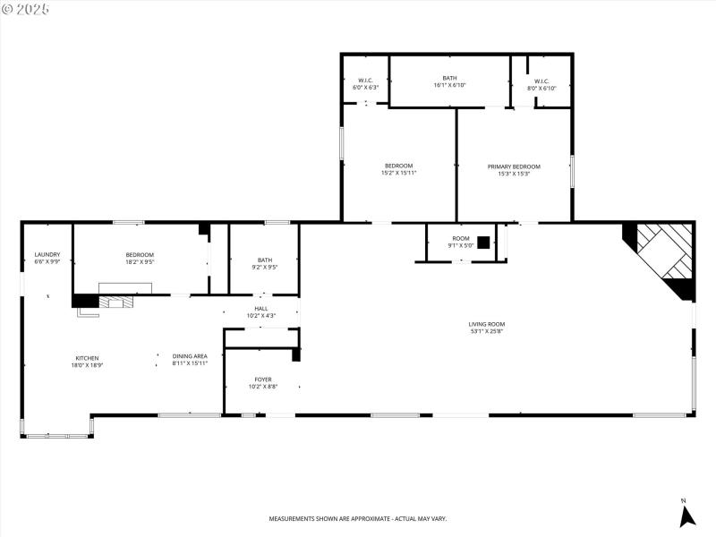
FINAL CALL FOR OFFERS! All offers due 11/16/2025 by 5:00 PM Pacific. This spacious ranch home offers 2,363± square feet of living space ready for your vision. Much of the interior has been de-constructed, providing a clean slate to design and finish exactly how you like. Set on a beautiful 1-acre lot dotted with mature trees, this property combines privacy, space, and opportunity. The attached 2-car garage adds convenience and storage. Whether you’re an investor, builder, or homeowner looking to create your dream home, this property is the perfect foundation for your next project. Property sold "As-is". Buyer and/or buyer's agent responsible for verifying all pertinent information deemed relevant by the prospective buyer, including but not limited to square footage, acreage, utilities, taxes, zoning, permitting, condition, school zones, HOAs, etc.
Off of Pacific Hwy, head NW on Main street. Follow Foothill Rd approx. 4.5 Miles. Prop is on Right
Dwelling Type: Residential
Subdivision: N/A
Year Built: 1964, County: US
Off of Pacific Hwy, head NW on Main street. Follow Foothill Rd approx. 4.5 Miles. Prop is on Right
Listing is courtesy of Windermere West LLC