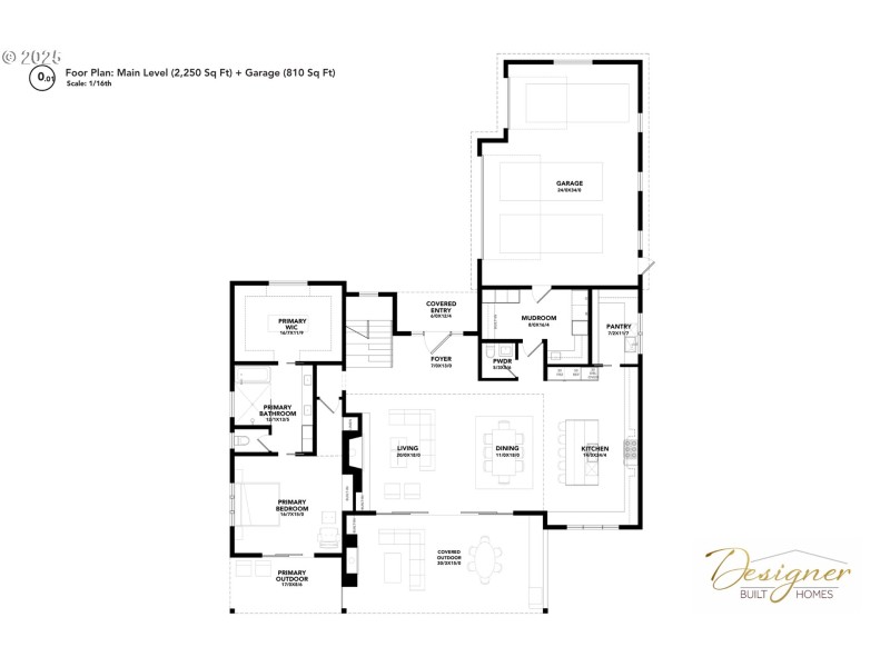
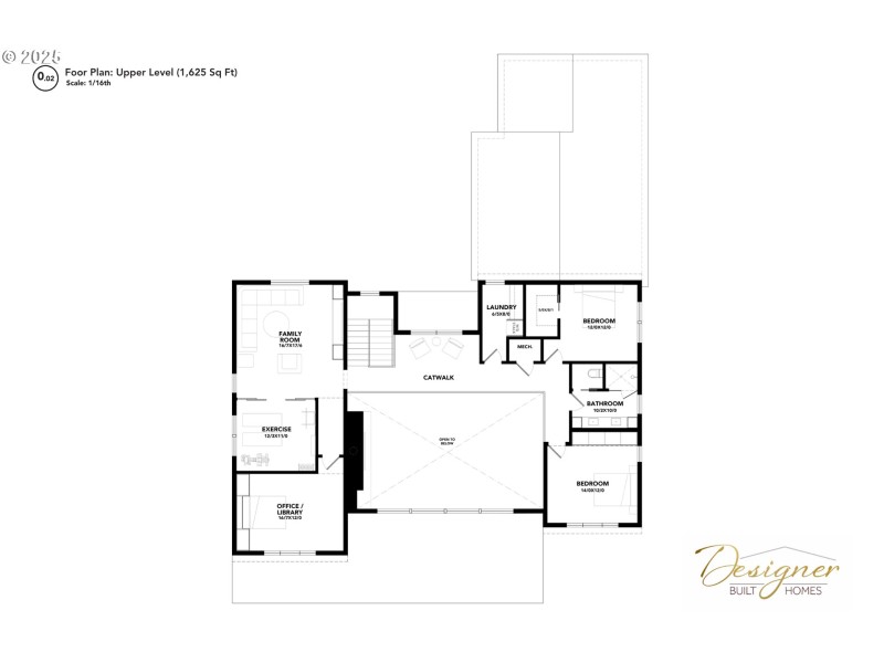
Construction starts soon, but there’s still time to choose your own custom finishes if you purchase before the new year! This 2026 Street of Dreams masterpiece is designed and built by Designer Built Homes. Devin Dougherty, the woman owner and builder has an eye for detail, and specializes in making the build process exceptional you'll want to do it again. This Modern-Organic home, set gently atop Serres Farm, is a 3,875-square-foot residence that embodies the harmony of natural materials, sleek architecture, and luminous spaces that define modern livability. Every element of the design reflects sophistication and warmth. The open-concept floor plan is framed by dramatic glass walls that dissolve boundaries between indoor and outdoor living while inviting an abundance of natural light throughout. At the heart of the home lies a gourmet chef’s kitchen curated for both beauty and function, complete with luxury appliances, custom cabinetry, and premium finishes chosen for their lasting elegance. The owner’s suite is a personal sanctuary, designed with timeless comfort in mind and finished with spa-level detail to promote relaxation and retreat. Thoughtfully selected materials and textures enhance every surface, creating a sense of balance and calm that perfectly suits the organic modern aesthetic. Outside, enjoy two covered living spaces, one off the family room and one off the primary. The main covered patio comes complete with a surround sound tv viewing area, a gas fireplace, and an outdoor kitchen. Off the primary, another covered space is perfect for enjoying your morning coffee, or an evening after work that’s only steps away from a spa grade outdoor sauna. It’s more than a residence—it’s an invitation to live beautifully, surrounded by craftsmanship, light, and the subtle beauty of its serene setting.
East of Holcomb Elementary. Holcomb N of Serres Farm to Barlow Trail on Palmer Rt on Kaylyn
Dwelling Type: Residential
Subdivision: SERRES FARMS
Year Built: 2026, County: US
East of Holcomb Elementary. Holcomb N of Serres Farm to Barlow Trail on Palmer Rt on Kaylyn
Listing is courtesy of Premiere Property Group, LLC