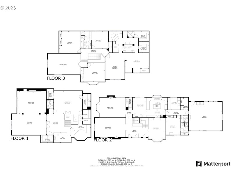
Nestled in Oregon's scenic Umpqua Valley, this extraordinary 2,670-acre ranch offers a rare blend of luxury, tranquility, & commercial potential. Atop a prominent knoll stands a grand 7,936-sqft Tudor-style mansion that commands sweeping 360-degree views of rolling pasture, woodlands, & distant hills. The home's 3-levels are a testament to craftsmanship & attention to detail featuring 5 spacious bedrooms, 4 full bathrooms, 2 powder rooms, custom millwork, stained-glass accents, chandeliers, & multiple fireplaces for an atmosphere of timeless elegance. Seeking a quiet reading space? Step into the charming, castle-like library. The rolling ladder & private balcony enhances its storybook feel. The basement is a haven for wellness. It features a hot tub, tanning bed, sauna & steam room, & fully equipped exercise room. Prefer a drink? Head to the full bar or select a bottle from the wine cellar. The kitchen offers style & functionality with a built-in Sub-Zero refrigerator, custom copper range hood, ample workspace, & storage. Currently operating as a working cattle ranch, the property includes a general-purpose building with a Helicopter hangar & landing pad, caretaker's apartment, meat-processing room, & workshop. A state-registered, one-mile private airstrip caters to aviation needs with potential for further development. Conveniently located along Interstate 5 & close to Historic Oakland. Heaven's Gate Ranch is fully approved by the county for destination resort development with civil engineering, site maps, & utility designs already completed. The new owner will receive comprehensive documentation including plans for a 100-room hotel, restaurant, convention center, & 200-lot residential subdivision—providing an advantage for streamlined development & customization. These approvals & plans save years of work & expense. Heaven's Gate Ranch marries majestic living with the rare potential to craft a world-class destination resort. It is a once-in-a-lifetime opportunity.
I-5 Exit 142, west on Metz Hill Rd, address on right
Dwelling Type: Residential
Subdivision: N/A
Year Built: 1984, County: US
I-5 Exit 142, west on Metz Hill Rd, address on right
Listing is courtesy of The Neil Company Real Estate