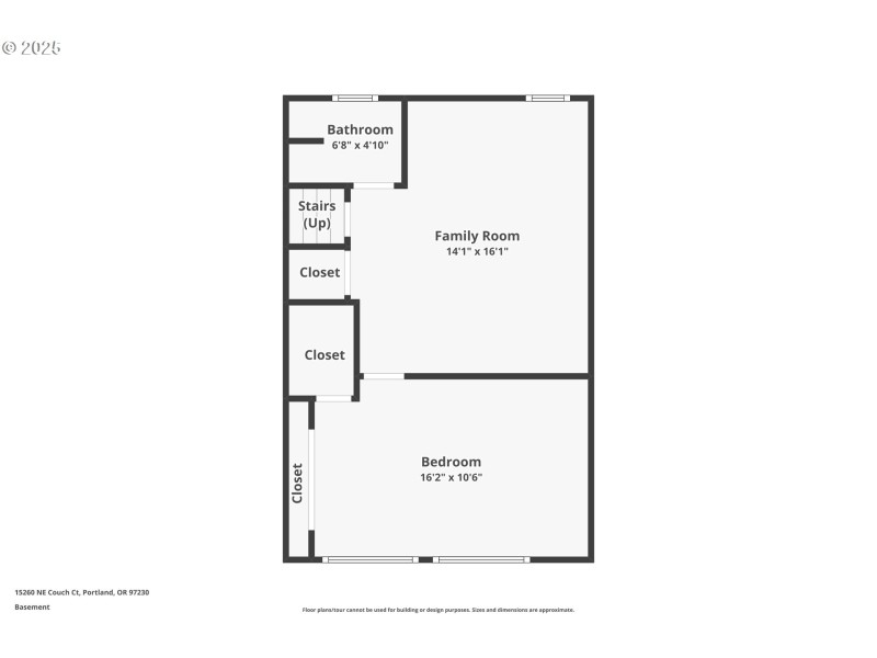
Move-in Ready 4BR/2BA Split-Level on Quiet Glenfair Cul-de-Sac : offering 1,752 sq ft of flexible living space on a generous 0.29-acre lot. This floorplan was designed for efficiency and livability. Natural separation between floors enhances privacy and reduces noise, plus more windows = better natural light and ventilation. Built in 1964, the home features a stone fireplace in the living room, original hardwoods and brand new laminate scratch-proof flooring installed in the kitchen and luxury vinyl plank in the lower level. On the main level you’ll find the kitchen with a large pantry and a breakfast bar, dining room, and living area; upstairs includes 3 bedrooms and a full bath; the lower level features the 4th bedroom plus full bathroom, and a spacious living room. Lower level exterior entrance-possible dual-living multi-gen or ADU? The home has newer double pane windows throughout, a high-efficiency gas furnace and newer central air conditioning. Enjoy seamless indoor-outdoor living with sliding door access to a large deck. Electrical panel is wired for a hot tub/spa. The fully fenced backyard includes an automated sprinkler system, 2 storage sheds (1 with electricity), a firewood shelter, a raised vegetable garden, planter boxes, and an established rose garden. In addition to your private outdoor oasis, you’ll be steps to Glenfair Park with a playground, trails, dog park, and open green space! The 2 car garage has several workbenches and lots of storage. Ample parking is available with the extra driveway space-permitted RV parking with RV canopy included. This is a well-kept, solid home that offers the interior spaces you need, incredible storage, and a huge private yard—all in a peaceful cul-de-sac with easy access to TriMet MAX/bus lines, Pella, Boeing, US Bank, shopping, dining, and schools. Come make this home yours! [Home Energy Score = 4. HES Report at https://rpt.greenbuildingregistry.com/hes/OR10239535]
NE Glisan, right on 151st, left onto Couch Ct
Dwelling Type: Residential
Subdivision: GLENFAIR
Year Built: 1964, County: US
NE Glisan, right on 151st, left onto Couch Ct
Listing is courtesy of Keller Williams Sunset Corridor