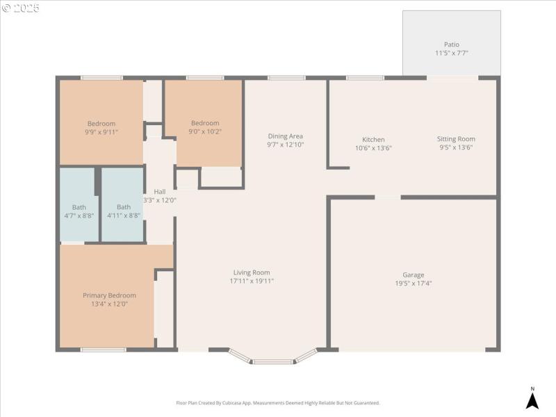
Charming 3-Bedroom Ranch with vaulted ceilings & convenient layout!Step into this inviting home featuring a bright living room with vaulted ceilings and a beautiful bay window that fills the space with natural light and leads to the vaulted dining room. The kitchen includes a cozy eat-in area and a sliding door that leads to a private patio and a partially fenced backyard—ideal for relaxing. The primary bedroom includes its own en-suite bath for added comfort. Enjoy the convenience of a 2-car attached garage.Seller is a licensed real estate agent in Oregon and plans to complete a 1031 exchange at no cost to the buyer.
Orient Dr, East on Powell Valley Rd, South on Barnes Rd, East on Barn Owl Way
Dwelling Type: Residential
Subdivision: N/A
Year Built: 2003, County: US
Orient Dr, East on Powell Valley Rd, South on Barnes Rd, East on Barn Owl Way
Listing is courtesy of John L. Scott Sandy