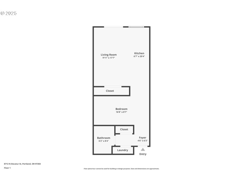
Attention first time buyers! Downsizers! Retirees! College students! Basically anyone looking for a quiet and affordable place to call home! AMAZING PRICE! PLUS SELLER WILL PAY BUYERS' HOA TRANSFER FEES AND THE FIRST 6 MONTHS OF BUYERS HOA DUES! Picturesque views of the iconic St. John’s Bridge, Forest Park! Perfect location near Cathedral Park, shopping, restaurants and more! Soak it all in through a wall of windows and a slider to a small private balcony (your plants will love it)! Secure, ground level entry plus the safety of the windows at a 2nd story level above an area NOT accessible by the public! Super high ceilings, completely open floorplan, wood floors throughout! The kitchen includes stainless steel appliances, granite counters and tons of cabinets. Even the washer/dryer are included! Don't like the open bedroom concept? How about adding 2-3 hanging barn doors to create a 4th wall!? Lots of parking in front lot and side street! WALK SCORE 83! BIKE SCORE 85! Check out the virtual tour and 3D walk through! Need a mortgage? How does $2050/month sound? That INCLUDES EVERYTHING! Principal, interest, taxes, insurance, monthly HOA dues that cover water, sewer, garbage, exterior insurance/maintenance! Only $6870 out of pocket for your down payment, or ZERO DOWN option if your gross annual income is below $99,000! NO ADDITIONAL EXPENSES - Even your closing costs are rolled into this loan! AFFORDABILITY DOES STILL EXIST! And YOU could OWN a home before the new year!!
Crawford to Alta, corner of Alta and Decatur
Dwelling Type: Residential
Subdivision: N/A
Year Built: 2007, County: US
Crawford to Alta, corner of Alta and Decatur
Listing is courtesy of Better Homes & Gardens Realty