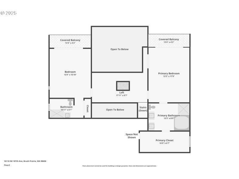
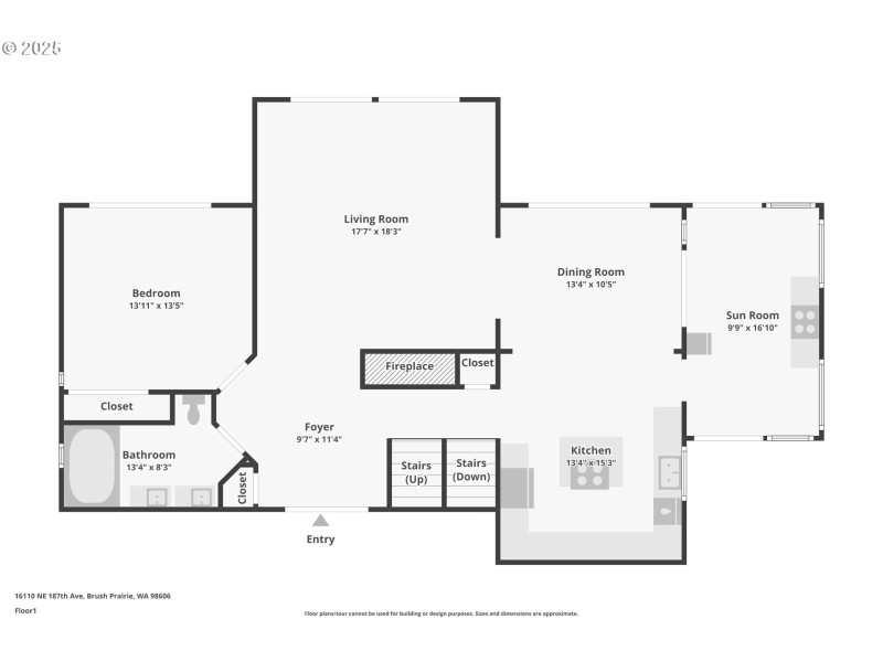
Located in a quiet, private setting that’s just minutes from shopping, dining, and Hockinson schools. This truly unique custom-built home is surrounded by lush greenery and visiting wildlife. Set on 1.44 serene acres, this property offers endless potential and imagination. The spacious tri-level layout features two primary suites upstairs, each with private baths and balconies. The main level includes a vaulted bedroom and full bath—ideal for guests—along with a vaulted living room with fireplace and a kitchen showcasing granite countertops, stainless steel appliances, and an island. The dining area opens to a bright sunroom with an outdoor kitchen and deck overlooking peaceful wooded views. The finished basement offers a multi-purpose family room with woodstove and patio access, a wet bar, bonus room with built-ins, a fourth bedroom, and a full bath—perfect for extended living or entertaining. A lifetime metal roof provides long-lasting durability and peace of mind.
N on NE 182nd Ave, R on NE 164th St, R on NE 187th Ave
Dwelling Type: Residential
Subdivision: N/A
Year Built: 1984, County: US
N on NE 182nd Ave, R on NE 164th St, R on NE 187th Ave
Listing is courtesy of Washington First Properties