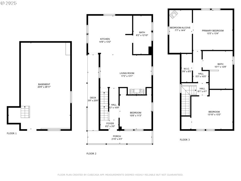
This classic Astorian Folk Victorian offers historic character and contemporary comfort. Featuring 3 bedrooms and 2 updated bathrooms, detailed trim-work, and a wraparound porch with low-maintenance Trex decking. The updated kitchen and vinyl plank flooring throughout add modern ease, while a walk-in shower and a brand new 2025 furnace ensure everyday comfort. Enjoy Columbia River views from the primary bedroom and take advantage of the daylight basement for added storage. Smack dab in the middle of Astoria, you're just minutes from downtown shops, dining, and the riverfront. Furnishings are negotiable.
Just in from the corner of 8th & Irving Ave. You may park on sidewalk in front of house.
Dwelling Type: Residential
Subdivision: Shively-McClure
Year Built: 1890, County: US
Just in from the corner of 8th & Irving Ave. You may park on sidewalk in front of house.
Listing is courtesy of Cascade Hasson Sotheby's International Realty