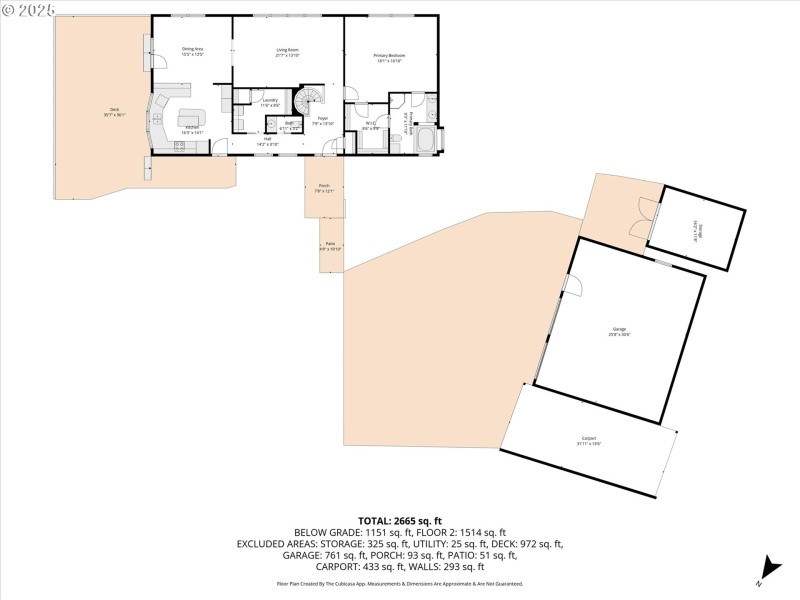
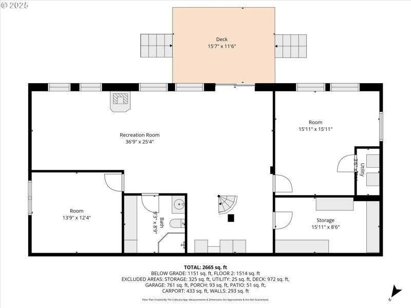
Enjoy 3,024 sq. ft. of privacy on nearly 8 wooded acres, ideally located with convenient I-5 access between Kelso and Kalama. This spacious home features 3 bedrooms and 2.25 bathrooms. The main floor includes the primary bedroom with a large walk-in closet, along with generous living room filled with windows that offer beautiful views of the surrounding property. Downstairs you’ll find the second bedroom, a possible third bedroom or flex space, storage room, 3/4 bath and additional living area. A cozy gas fireplace adds warmth and charm to the home. Outside, enjoy a 24x30 shop with two garage doors, a covered RV parking area, and a 12x16 storage shed—perfect for all your tools, toys, and projects. Circular driveway makes things so easy and convenient!
I-5 take exit 36 to Old Pacific Highway South, then left onto Fish Pond Rd. stay left at Y then lef
Dwelling Type: Residential
Subdivision: N/A
Year Built: 1990, County: US
I-5 take exit 36 to Old Pacific Highway South, then left onto Fish Pond Rd. stay left at Y then lef
Listing is courtesy of Windermere Northwest Living