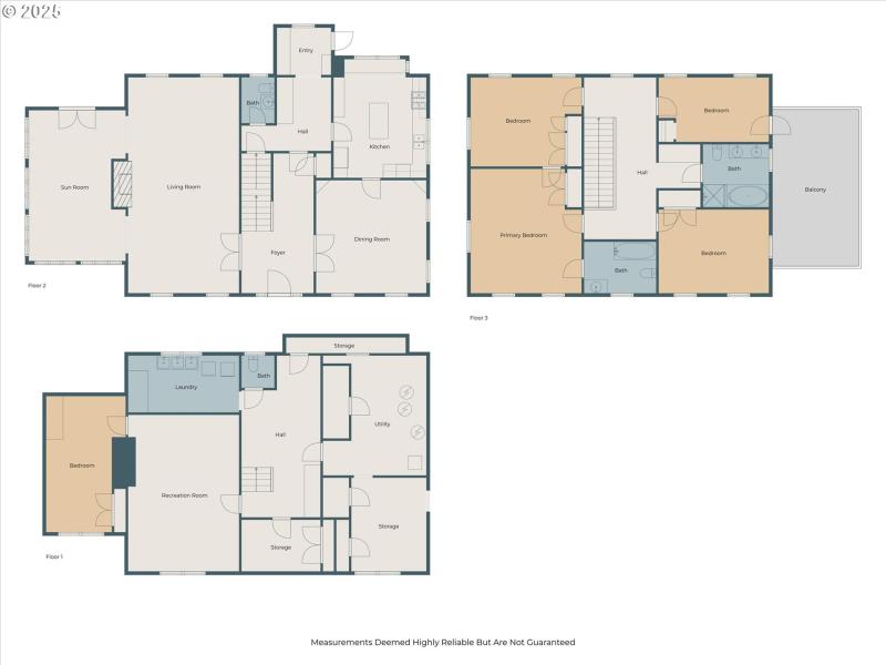
Beautiful, historic colonial home located in the heart of south La Grande. This classic house features 5 bedrooms, 4 baths, nearly 5000 sf, a beautiful kitchen, and lot of updates and improvements. There are views of the hillsides from numerous windows, a cozy wood fireplace and tons of storage. The property is just under a half acre and features a huge backyard with a patio, fruit trees and a custom built chicken coop. There is a large detached garage with a shop space and a new concrete driveway. The driveway has access to both O Ave and Penn. Close to the hospital, downtown, EOU and the schools. Call today to view this home with your realtor!
Penn
Dwelling Type: Residential
Subdivision: N/A
Year Built: 1926, County: US
Penn
Listing is courtesy of Blue Summit Realty Group