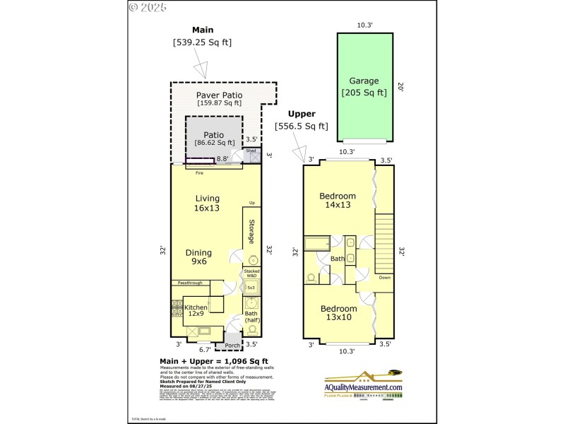
Live in the heart of downtown Lake Oswego's First Addition neighborhood! Charming + lush courtyard greets guests with beautiful landscaping. Light & bright interior features 9' high ceilings, great room concept on main level with Brazilian cherry wood floors + crown molding. Remodeled kitchen with stainless steel appliances, quartz counter tops & eat bar. Living room with cozy gas fireplace. Sliding glass door opens to fenced & oversized private patio. Upstairs you will find 2 bedrooms connected by full bathroom with 2 sink vanity, excellent storage & shower+tub combo. Detached garage with attic storage & opener . This 16 unit complex is a special combination of a low maintenance, peaceful retreat in the heart of one of the most sought-after neighborhoods. Stroll to shops, grocery, library, post office, farmer's market, theater, dining, cafes & parks. Walk Score 94 + Bike Score 69!
A Avenue to North on 5th Street
Dwelling Type: Residential
Subdivision: FIRST ADDITION
Year Built: 1998, County: US
A Avenue to North on 5th Street
Listing is courtesy of LUXE Forbes Global Properties
Sign in to your account to continue