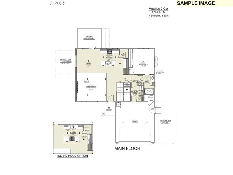
LOT:MS91 - Under construction - Estimated completion January 2026 - Brand new 2095 sqft two level home situated in the desirable McClannahan Summit neighborhood in Umatilla OR on a spacious corner lot. Stand out features of this 4 bedroom 3 bath home include a deluxe chef's kitchen with quartz counters, walk-in pantry, island, farm sink and stainless steel appliances including dishwasher and built-in gas range. Luxurious primary retreat and ensuite with double sinks, freestanding soaking tub, and large walk-in closet. Main level guest suite with full bath. The Metolius plan built by award winning builder MonteVista Homes. Great room open design, 9ft ceilings, main level dedicated laundry space, spacious loft / bonus space, 95% high efficiency forced air heating, air conditioning, electric fireplace, and covered patio.
McClannahan Summit is located on Taft St in Umatilla, OR.
Dwelling Type: Residential
Subdivision: MCCLANNAHAN SUMMIT
Year Built: 2026, County: US
McClannahan Summit is located on Taft St in Umatilla, OR.
Listing is courtesy of PacWest Realty Group
Sign in to your account to continue