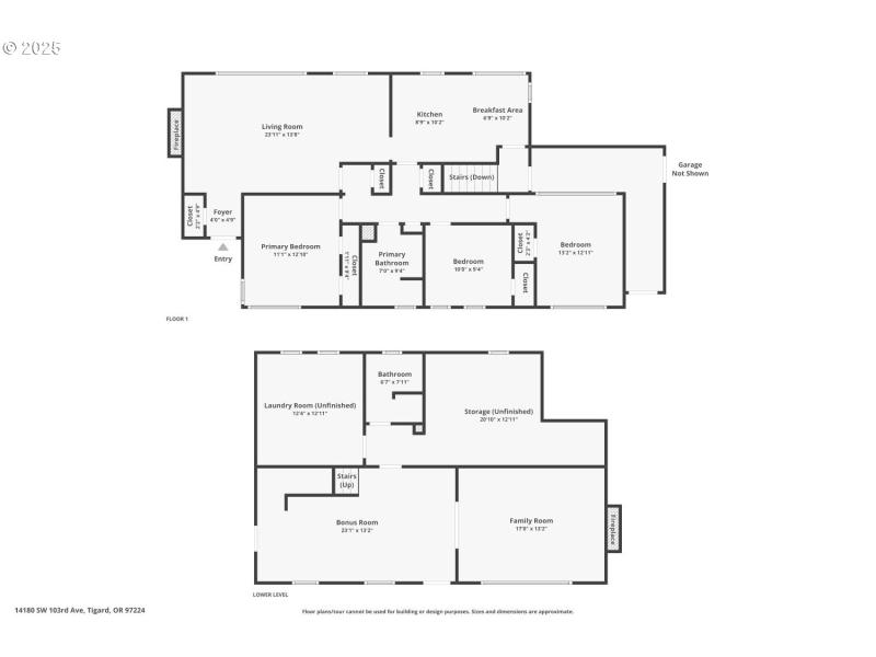
Opportunity knocks!!! Development potential!!! 3-bedroom 2-bathroom daylight ranch sitting on a huge 0.62-acre lot that is zoned RES-D. Superb location -just a few minutes away from HWY 99 and downtown Tigard. Fix up the existing house and partition the lot to build middle housing such as duplexes, triplexes, quads, cottage clusters, or row homes. Ask for a developer packet. Don't let this incredible chance slip away! Buyer to verify with City of Tigard regarding development potential.
From SW MacDonald St turn onto SW 103rd Ave, house is on left side
Dwelling Type: Residential
Subdivision: N/A
Year Built: 1954, County: US
From SW MacDonald St turn onto SW 103rd Ave, house is on left side
Listing is courtesy of Keller Williams PDX Central
Sign in to your account to continue