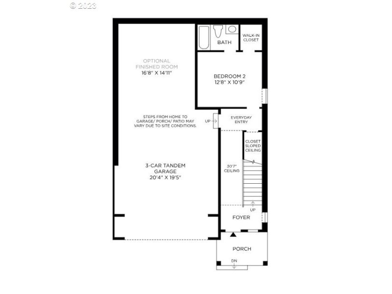
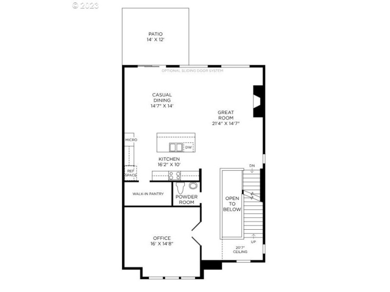
Farmhouse Kruse floor plan features an open, light and bright main floor with 10' ceilings and a spacious kitchen, large center island. The primary suite offers a nicely appointed en-suite bath with dual vanity, soaking tub and walk in shower. The downstairs basement offers an additional bedroom, home office or bonus room, with a full bathroom. This home has been professionally designed by our Toll Brothers Designers. Please contact for details!
Kaiser to NW Holman Way to Newberry Lane, North facing Homesite 89
Dwelling Type: Residential
Subdivision: Hosford Farms Terra
Year Built: 2025, County: US
Kaiser to NW Holman Way to Newberry Lane, North facing Homesite 89
Listing is courtesy of Toll Brothers Real Estate Inc