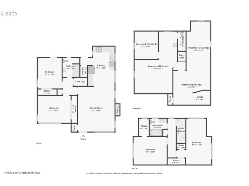
Welcome to 14806 SE Bush St! This well-maintained 6-bedroom, 2.5-bath home sits on a desirable corner lot near Powell Butte Park and offers 2,226 sq. ft. of versatile living space. The home features an updated kitchen with stainless steel appliances, updated bathrooms, hardwood floors on the main level, and spacious bedrooms throughout. Recent updates in the last two years include PEX plumbing, a tankless water heater, electric fireplace, chimney repairs, interior paint, added electrical outlets and new lighting in garage & basement. Additional improvements within the last six years include a new roof & windows. Furnace was replaced in 2016. Move-in ready with all kitchen appliances included. The main and upper levels each offer two bedrooms and a full bath. The lower level provides a comfortable flex room, dedicated laundry space, half bath, and two non-conforming bedrooms or bonus rooms. Enjoy a fenced backyard, an oversized detached one-car garage, and dedicated RV parking. Come make this your home today! Buyer to verify all information in listing.
SE Powell Blvd to 148th, South on 148th to SE Corner of Bush & 148th
Dwelling Type: Residential
Subdivision: N/A
Year Built: 1958, County: US
SE Powell Blvd to 148th, South on 148th to SE Corner of Bush & 148th
Listing is courtesy of Redfin