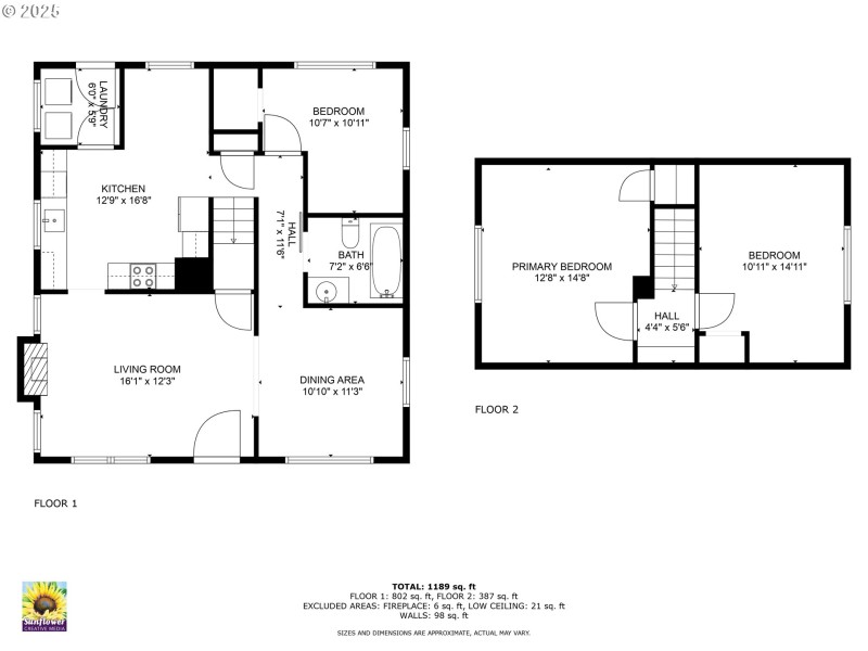
Stunning 1928 Two-Story Bungalow in the Lake Sacajawea area!Full of character and modern updates, this 3-bedroom, 1-bath home offers 1,128 sq ft of charm and comfort. Enjoy peace of mind with new roof, windows, plumbing, electrical, LVP flooring, fireplace, lighting, trim, cabinets, and paint—all updated within the last 5 years! The kitchen features a cozy sitting area, pantry, and spice cabinet, while the classic clawfoot tub adds vintage appeal. Large fenced backyard with privacy screens, garden space, and a detached two-story shop—perfect for hobbies or storage. Quiet street, move-in ready, and absolutely adorable!
NW on Beech St, Right on 24th
Dwelling Type: Residential
Subdivision: N/A
Year Built: 1928, County: US
NW on Beech St, Right on 24th
Listing is courtesy of Coldwell Banker Bain