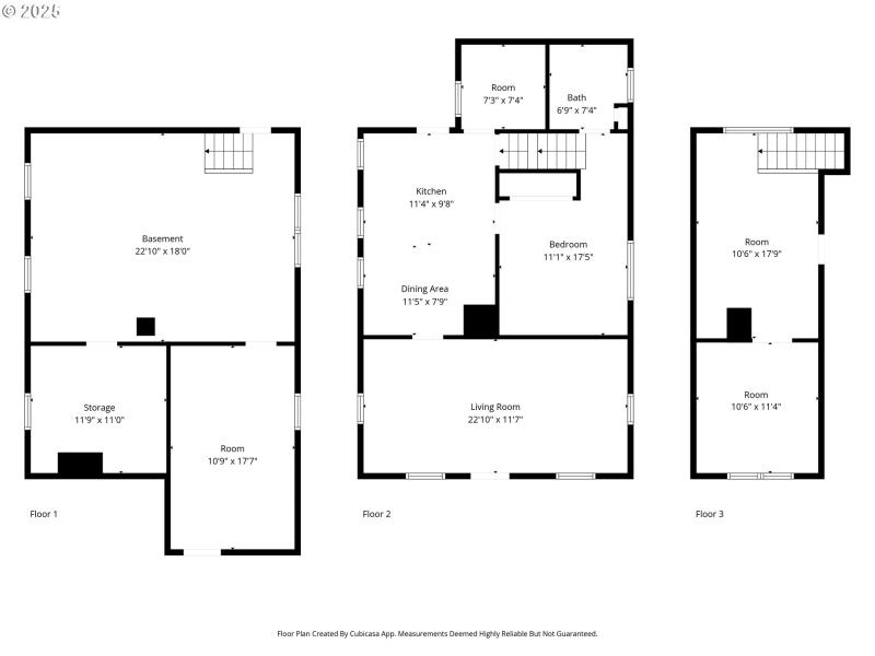
For Sale - TWO neighboring tax lots, each 50 x 100 ft, to be sold as a package. One lot has a home on it, the other is vacant. LOT 6 - VACANT LOT: Lot has been cleared. It does not have any utilities connected. However, PortlandMaps shows a city sewer lateral ready and available. LOT 7 - WITH HOME: Bring your vision and tools to this prime South Tabor fixer! Built in 1908, this 1,932 sq ft single-family home offers 3 bedrooms and 1 bathroom, plus a tuck-under garage on a 5,000 sq ft lot (R5 zoning). With utilities already connected (water, sewer, electricity), the groundwork is in place for your next project. This property is ideal for investors, developers, or flippers seeking a cash-only opportunity. The interior is in need of a complete overhaul. There is currently no working furnace and the electrical panel is minimal and all electrical will need a full update. The sewer line is likely the original line. Fortunately, the home has been fully cleaned out and the property has undergone extensive clearing, giving you a good head start. The two lots are located in the heart of Portland’s South Tabor neighborhood, you’ll be close to schools, parks, shops, and restaurants, with easy access to public transit and major commuter routes. Walk score 83, Bike score 92!NOTE: Both lots have been searched and no buried oil tanks were found. The tank search report, the asbestos report for the home, and an exiting conditions map are available in the MLS documents. Sale includes a completed survey of both lots.
From SE 52nd Ave, east of SE Woodward, south onto SE 53rd Ave.
Dwelling Type: Residential
Subdivision: SOUTH TABOR
Year Built: 1908, County: US
From SE 52nd Ave, east of SE Woodward, south onto SE 53rd Ave.
Listing is courtesy of John L. Scott