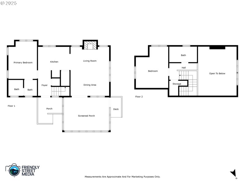
Nestled amongst a grove of old growth trees and at the edge of the beautiful McKenzie River sits this cozy, light filled, cabin featuring custom interior accents with Douglas fir flooring, knotty pine walls and vaulted beam ceilings, electric fireplace in the open and spacious living room, workable kitchen with updated appliances, main level bedroom suite, upper guest room with high ceilings and sitting area, guest bathroom with a shower. Tucked in is a little office/computer area. Oversized screened in porch with comfortable furniture, area rug and exterior entrance for year-round enjoyment, watching the wildlife play and easy access to the river's edge. The cabin sits off by itself even though it is on over 6 acres of common grounds. Natural landscaping and fabulous river frontage and privacy. Little patio area with barbecue. Fish from the riverbank or launch your raft or kayak. Detached garage. Currently being advertised on Air B&B with great rental history. RC zoning allows for part time owner occupancy and or part time rental income. Buyer to do own due diligence.
Hwy 126 East, Mp 50, Log Cabin Inn Condominiums, cabin to left of parking area
Dwelling Type: Residential
Subdivision: N/A
Year Built: 2008, County: US
Hwy 126 East, Mp 50, Log Cabin Inn Condominiums, cabin to left of parking area
Listing is courtesy of Windermere RE Lane County