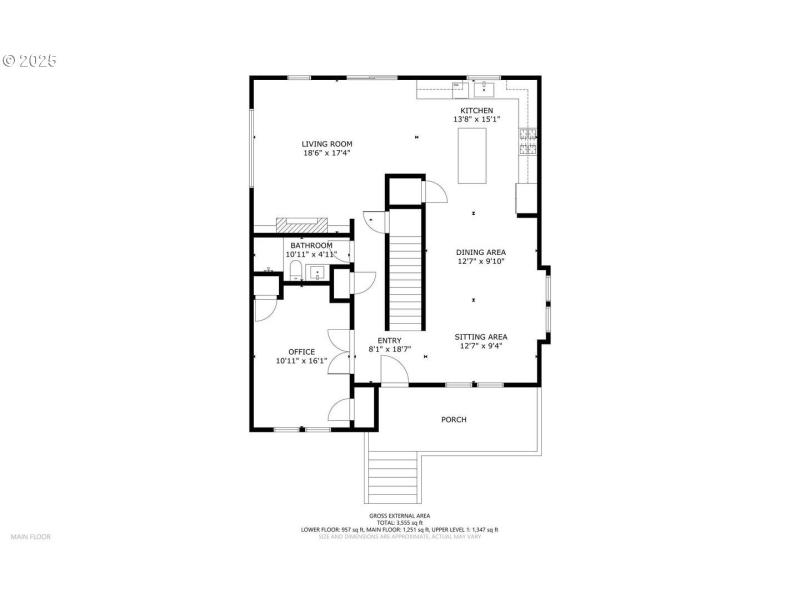
RHETT BUTLER'S latest build! Rarely do we see new construction in Alameda, but look no further. Butler has taken numerous details from his record breaking Beaumont sales to create this new modern build. Over 3500 square feet across 3 floors! The main level features a gracious bedroom and full bathroom in addition to a stunning open concept dining room, kitchen, great room! Rift white oak slab cabinetry, classic white quartz counters and a full FULGOR MILANO appliance package grace the kitchen while expansive windows, doors and a stunning gas fireplace surround highlight the great room. Just off the oversized sliding doors is a covered back deck with a second gas fireplace and separate eating area. Enjoy northeast living from these spaces year round! Moving upstairs you will find the highly coveted 4 bedroom, 2 bathroom configuration with a rare upstairs laundry room. The lower level boasts a legal ADU with second kitchen, full bathroom and gracious living room and bedroom. A separate entrance can be secured to allow the lower level occupants to enjoy their own space or have the entire home combined for entraining and/or guest quarters! You don't want to miss this rare opportunity to enjoy the benefits of new construction in one of Portland's most cherished neighborhoods! Alameda Elem. and Grant High School!
Fremont, South on NE 31st
Dwelling Type: Residential
Subdivision: ALAMEDA
Year Built: 2025, County: US
Fremont, South on NE 31st
Listing is courtesy of Windermere Realty Trust