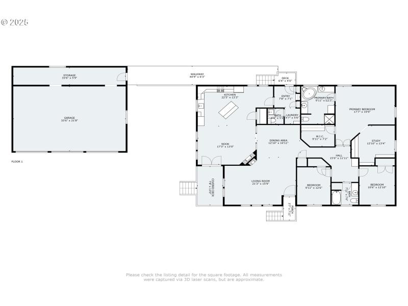
Spacious 3-Bedroom Home with 3-Car Garage on a Corner Lot Near the Coast!Just minutes from the beach, this well-cared-for 2,460 SqFt home offers 3 bedrooms, 2.5 baths, and a spacious 3-car garage. Situated on a desirable corner lot and built in 2000, the home welcomes you with a charming wraparound covered porch and French doors that lead into a bright living room featuring recessed ceilings and a double-sided fireplace. The layout includes both formal and casual dining spaces—one off the living room and the other within the large kitchen, which is equipped with granite countertops, custom cabinetry, a central island, and access to the porch for seamless indoor-outdoor living. The primary suite offers a carpeted bedroom, walk-in closet, and an attached office with wood floors and built-ins. The en suite bathroom includes dual sinks, a soaking tub, and a step-in shower. Two additional bedrooms provide flexible space—one with wood floors, perfect for hobbies or a studio. A partially fenced section of the yard features low-maintenance artificial turf and a cozy firepit area—ideal for relaxing outdoors. At the back of the property, the oversized detached garage provides ample room for a workshop, tools, and storage.
Hwy 101 - W on 35th - Rt on Rhododendron - Lft on N Jetty - Property on corner
Dwelling Type: Residential
Subdivision: N/A
Year Built: 2000, County: US
Hwy 101 - W on 35th - Rt on Rhododendron - Lft on N Jetty - Property on corner
Listing is courtesy of Windermere Real Estate Lane County