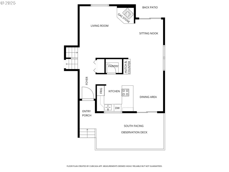
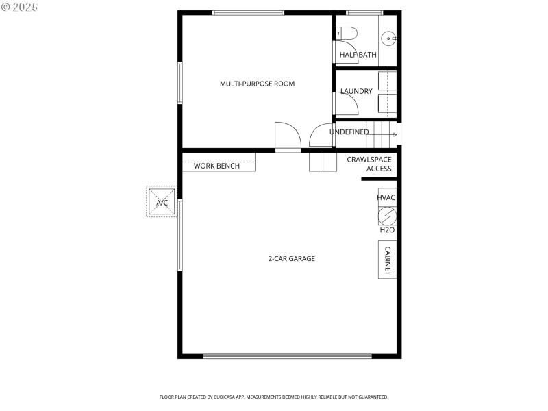
This well maintained tri-level home across from Claggett Creek in Ten-At-McNary is one of 17 unique homes in a lovely private neighborhood that's truly one of Keizer's best-kept secrets. McNary Golf Course is just across the creek with direct access on private walk/golf cart path to the course and restaurant, and to Courthouse Fitness Club. Home has special hard-to-find touches, like a stained-glass window, a larger than usual primary suite, custom closet organizers, black-out shades, a walk-in pantry, built-in China cabinet, and engineered wood flooring throughout. Possibly the most wonderful feature of this home is the beautiful landscaped yard with multiple outdoor living spaces that take advantage of the wooded hillside and the seasonal color changes. An abundance of wildlife only adds to the feeling of "sanctuary".
River Rd., North on Wheatland, West on McNary Heights Dr.
Dwelling Type: Residential
Subdivision: N/A
Year Built: 1985, County: US
River Rd., North on Wheatland, West on McNary Heights Dr.
Listing is courtesy of Windermere Heritage