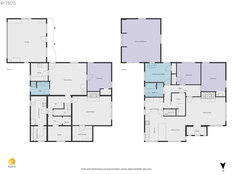
Motivated sellers are willing to potentially provide a credit for closing costs. Nestled in Metzger, this traditional dual-living home offers a rare blend of thoughtful updates and classic charm. With a stylish remodel in key entertaining areas and original features that evoke farmhouse warmth, this home invites both comfort and creativity. Built in 1955, this home features a new in 2021 furnace and A/C, and it stands on strong bones and a functional layout. The main level features three bedrooms and one full bath, complemented by light-filled gathering spaces that have been artfully updated. The open-concept kitchen draws inspiration from a Magnolia-style aesthetic, showcasing richly toned cabinetry, luminous mother-of-pearl-inspired tile, and an expansive pantry ready to be stocked for any occasion. Just off the kitchen, a brand-new deck invites easy outdoor living, accessible also from the spacious primary bedroom. Downstairs, the flexible lower level offers room to grow, whether as an extension of the main living space or a potential secondary suite. Here you'll find a wood-accented kitchen and dining nook, a cozy family room with fireplace, a second full bath, and two additional rooms perfect for offices, hobbies, or future legal bedrooms. Most of the lower level has been re-floored and awaits your personal touch. The home also features recent electrical and plumbing updates that bring peace of mind while maintaining the charm of its original craftsmanship. The yard offers year-round interest and beauty. Set on a spacious lot, the outdoor space includes a dry storage area beneath the deck, a double garage, and a triple insulated backyard studio, complete with electricity, built-in desk, and shelving. Ideal for an office or creative retreat. This is more than a home: t's an opportunity to live, create, and grow in one of Portland's most desirable communities. Come see the possibilities and make them your own.
Hall or Taylors Ferry to Washington Drive to Cedarcrest
Dwelling Type: MultiFamily
Subdivision: N/A
Year Built: 1955, County: US
Hall or Taylors Ferry to Washington Drive to Cedarcrest
Listing is courtesy of RE/MAX Equity Group